Book viewings, submit offers and valuations online 24/7

  0203 5000 999         Login  / Register   

2 bed Apartment in Headwater Point block A 2 Dipper Drive, London, E3 3YQ £125,000

Available

Description

Property Ref: 16354
For viewing arrangement, please use 99home online viewing system.

Property Ref: 16354

We are pleased to present an exceptional Apartment located at Headwater Point block A, London, E3. This wonderful residence boasts 2 bedrooms, 2 bathrooms, and 1 living room, offering ample space for comfortable living. Additionally, it features a fully-fitted kitchen, ideal for culinary enthusiasts.

Positioned in a prime location, this property offers easy access to a range of local amenities and public transportation, ensuring convenience for residents. Its proximity to esteemed schools and a college enhances its appeal, providing families with access to excellent educational opportunities.

This residence embodies the perfect blend of comfort, convenience, and quality living, making it an ideal choice for discerning individuals or families seeking a place to call home.

Property Type: Apartment
Full selling price: £500000.00
Pricing Options: Shared ownership
Tenure: Leasehold
Percentage to be sold: 25%
Share price: £125000.00
Monthly rent based on 25% share: £1030.65
Remaining lease (In Years): 987
Yearly Ground Rent Cost: £0.00
Yearly Management Cost: £3078.36
Council tax band: D
EPC rating: B
Measurement: Bedrooms, Bathrooms, and Living Room
Possession of the property: Occupied

  • 2 Bedroom(s)
  • 2 Bathroom(s)
  • 1 Living Room(s)

Address: Headwater Point block A 2 Dipper Drive, London, E3 3YQ.

Shared ownership: £125,000

For more details and to book an appointment,  Call our dedicated sales team now.

Disclaimer : 99home.co.uk is the seller's agent for this property. Your conveyancer is legally responsible for ensuring any purchase agreement fully protects your position. We make detailed enquiries of the seller to ensure the information provided is as accurate as possible. Please inform us if you become aware of any information being inaccurate

Fraud warning : We have had reports of fraudulent activities in our industry. DO NOT make any payment directly to the landlord or the seller. Be cautious of emails or messages asking you to transfer funds to any account, please contact us by telephone immediately to verify the authenticity of the communication and under NO circumstances action the request. If you paid any deposit or rent to 99home, we will release the fund to the landlord once you have moved in. Your safety is our top priority!

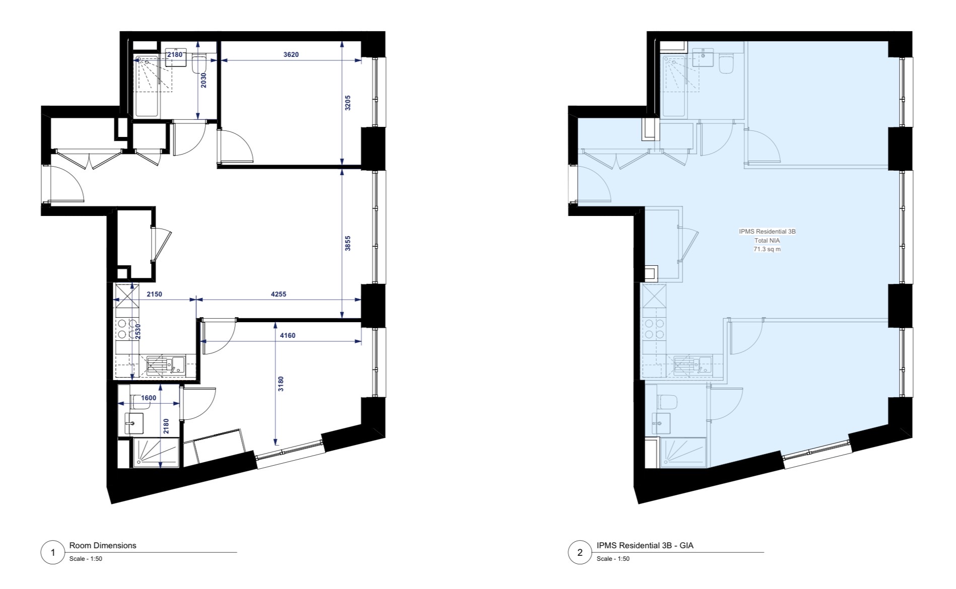
Property Floorplans

floor Plans Photo

EPC Graphs

floor Plans Photo

Property Location

Request Details Book Viewing View Brochure Make Offer Stamp Duty Calculator
Share mail icon

Key Features


Property Details

Property Type: Apartment

Property Tenure: Leasehold

Council Tax Band: D

Bedroom(s): 2

Bathroom(s): 2

Living Room(s): 1

Address: Headwater Point block A 2 Dipper Drive, London, E3 3YQ

Lease Hold property options

Remaining Lease in years: 987

Yearly Ground rent cost: 0.00

Yearly management cost: 3078.36

Status Available

Features

Shared Ownership 25%

Monthly rent £1030.65

Monthly service charge £256.53

Roof Garden

Close to Train station

Heating is through underfloor heating (communal heating)

On-street parking - if approved by council), property has access to a bike storage

It is a top floor flat

Parking

N/A

Outside Space

N/A

Heating

Underfloor Heating


Cookies disclaimer

I agree Our site saves small pieces of text information (cookies) on your device in order to deliver better content and for statistical purposes. You can disable the usage of cookies by changing the settings of your browser. By browsing our website without changing the browser settings you grant us permission to store that information on your device.