Book viewings, submit offers and valuations online 24/7

  0203 5000 999         Login  / Register   

2 bed Flat in Norse Place Exeter, Exeter, EX1 3YL £90,000

Sold STC

Description

Property Ref: 12747
For viewing arrangement, please use 99home online viewing system.

Property Ref: 12747

A super stylish two bedroom flat with pleasant onward views.

The heart of the home is a fantastic, open plan, light and airy living/dining area, perfect for entertaining. There are two spacious double bedrooms and a contemporary family bathroom.

This property benefits two parking spaces and locked bike storage.

The development is located in the centre of Pinhoe in the highly sought after Mayfield Gardens development. It is ideally located for access to the M5 motorway, A30 and Exeter international airport. Pinhoe also offers a railway station for services to the city centre and services to London Waterloo......

  • 2 Bedroom(s)
  • 1 Bathroom(s)
  • 1 Living Room(s)

Address: Norse Place Exeter, Exeter, EX1 3YL.

Shared ownership: £90,000

For more details and to book an appointment,  Call our dedicated sales team now.

Disclaimer : 99home.co.uk is the seller's agent for this property. Your conveyancer is legally responsible for ensuring any purchase agreement fully protects your position. We make detailed enquiries of the seller to ensure the information provided is as accurate as possible. Please inform us if you become aware of any information being inaccurate

Fraud warning : We have had reports of fraudulent activities in our industry. DO NOT make any payment directly to the landlord or the seller. Be cautious of emails or messages asking you to transfer funds to any account, please contact us by telephone immediately to verify the authenticity of the communication and under NO circumstances action the request. If you paid any deposit or rent to 99home, we will release the fund to the landlord once you have moved in. Your safety is our top priority!

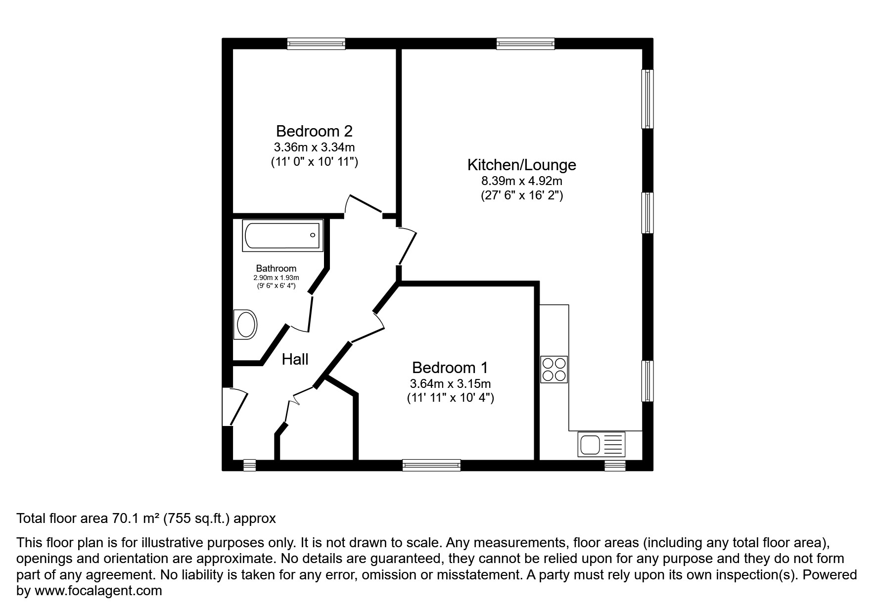
Property Floorplans

floor Plans Photo

EPC Graphs

floor Plans Photo

Property Location

Request Details Book Viewing View Brochure Make Offer Stamp Duty Calculator
Share mail icon

Key Features


Property Details

Property Type: Flat

Property Tenure: Leasehold

Council Tax Band: B

Bedroom(s): 2

Bathroom(s): 1

Living Room(s): 1

Address: Norse Place Exeter, Exeter, EX1 3YL

Lease Hold property options

Remaining Lease in years: 997

Yearly Ground rent cost: 0.00

Yearly management cost: 1905.48

Status Sold Subject to Contract

Features

Chain Free

Ready to Move

Investment Opportunity

Prime Location

Close to Train station

Close to School

Double Glazed

Shared Ownership

Communal Garden

Close to Train station

Monthly rent £301.61

Monthly service charge £158.79

Parking

Allocated

Outside Space

Communal Garden

Heating

Central

Double Glazing

Gas Central Heating


Cookies disclaimer

I agree Our site saves small pieces of text information (cookies) on your device in order to deliver better content and for statistical purposes. You can disable the usage of cookies by changing the settings of your browser. By browsing our website without changing the browser settings you grant us permission to store that information on your device.