Book viewings, submit offers and valuations online 24/7

  0203 5000 999         Login  / Register   

2 bed Apartment in 152 Silbury Blv , Milton Keynes, MK9 1LT £325,000

Sold STC

Description

Property Ref: 12964
For viewing arrangement, please use 99home online viewing system.

Property Ref: 12964

Flat is a top floor apartment, containing the largest two bedrooms and a south facing balcony, making it the most desirable property within the development. It features stunning views over the city and with a focus on open plan living and high standard specification including flooring, tiling and integrated appliances.

2 Bedroom / 2 Bathroom / Open Plan Kitchen & Living Area

Allocated Parking Space

High Specification Apartment With Wooden Flooring

Italian White Gloss Kitchen

Fitted Hob, Oven And Integrated Fridge Freezer And Dishwasher

Luxury Bathrooms Suite With Ceramic Tiling

Built In Wardrobes

Double Glazed Windows

Walking Distance To Milton Keynes Train Station

Finished to a high standard this apartment will appeal to both the property investor looking for strong rental returns and capital growth, and buyers looking for an apartment where they can be right in the heart of one of the fastest growing cities in the UK.

Because of its unique central location, this apartment will attract a lot of interest from professionals looking to rent close to the business district as well as the main line train station. Currently rental demand far outstrips supply in the centre of Milton Keynes.

Location summary

Less than 5 minute walk to mainline train station and then 35 minutes by train to Central London.
The Centre :mk shopping, Theatre District, Xscape and the range of shops, bars and other leisure activities are all in a very short walk from the development.

Located just a stones throw from 'The Hub' development, which boasts well known bars and restaurants and right in the heart of the commercial district of Milton Keynes. Major organisations have their UK headquarters a short walk away.

Milton Keynes’ plethora of green spaces and outdoor areas has led to it being a local hub for
cultural events, from festivals to concerts. The focus on outdoor living is emphasised through
the town’s 270 km of cycle routes and 5,000 acres of parkland.

Parking - Personal Allocated Parking Space & residents permit available for additional vehicles...

  • 2 Bedroom(s)
  • 2 Bathroom(s)
  • 1 Living Room(s)

Address: 152 Silbury Blv , Milton Keynes, MK9 1LT.

Guide Price: £325,000

For more details and to book an appointment,  Call our dedicated sales team now.

Disclaimer : 99home.co.uk is the seller's agent for this property. Your conveyancer is legally responsible for ensuring any purchase agreement fully protects your position. We make detailed enquiries of the seller to ensure the information provided is as accurate as possible. Please inform us if you become aware of any information being inaccurate

Fraud warning : We have had reports of fraudulent activities in our industry. DO NOT make any payment directly to the landlord or the seller. Be cautious of emails or messages asking you to transfer funds to any account, please contact us by telephone immediately to verify the authenticity of the communication and under NO circumstances action the request. If you paid any deposit or rent to 99home, we will release the fund to the landlord once you have moved in. Your safety is our top priority!

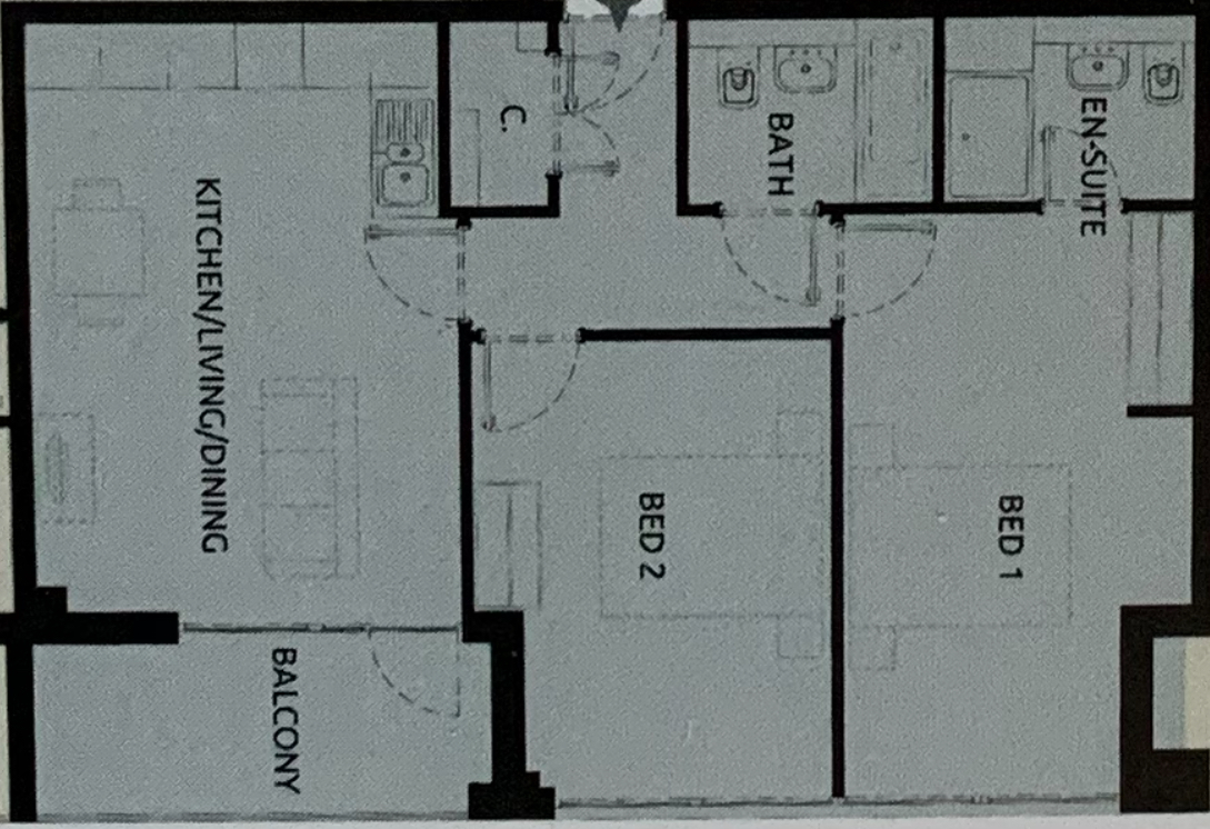
Property Floorplans

floor Plans Photo

EPC Graphs

floor Plans Photo

Property Location

Request Details Book Viewing View Brochure Make Offer Stamp Duty Calculator
Share mail icon

Key Features


Property Details

Property Type: Apartment

Property Tenure: Leasehold

Council Tax Band: C

Bedroom(s): 2

Bathroom(s): 2

Living Room(s): 1

Address: 152 Silbury Blv , Milton Keynes, MK9 1LT

Lease Hold property options

Remaining Lease in years: 144

Yearly Ground rent cost: 320.00

Yearly management cost: 1500.00

Status Sold Subject to Contract

Features

Prime Location

Close to Train station

Large bedroooms

South facing

Balcony

Allocated Parking Space

Luxury design

En-suite to master bedroom

Parking

Allocated

Outside Space

Balcony

Heating

Double Glazing


Cookies disclaimer

I agree Our site saves small pieces of text information (cookies) on your device in order to deliver better content and for statistical purposes. You can disable the usage of cookies by changing the settings of your browser. By browsing our website without changing the browser settings you grant us permission to store that information on your device.