Book viewings, submit offers and valuations online 24/7

  0203 5000 999         Login  / Register   

2 bed Bungalow in Faraday Drive, , Shenley Lodge, MK5 7DB £90,000

Sold STC

Description

Property Ref: 13328
For viewing arrangement, please use 99home online viewing system.

Property Ref: 13328

Council Tax:C

Welcome to Faraday Drive, Shenley Lodge, MK5 7DB—a charming and well-presented two-bedroom, one-bathroom home with a cosy living room. This delightful property offers a perfect blend of comfort and convenience, making it an ideal choice for couples, small families, or professionals.

Key Features:

Two Bedrooms: The property boasts two generously sized bedrooms, both with ample natural light and space for wardrobes. The master bedroom offers a peaceful retreat, while the second bedroom is perfect for guests or use as a home office.

One Bathroom: The contemporary family bathroom is fitted with a modern suite, including a bath with overhead shower, wash basin, and WC. Tastefully designed, it provides a relaxing space to unwind after a long day.

Living Room: The inviting living room is the heart of the home, featuring a comfortable layout perfect for both relaxing and entertaining. Large windows enhance the sense of space and light, creating a warm and welcoming atmosphere.

Kitchen: The well-equipped kitchen comes with ample cupboard space, modern appliances, and room for dining, making it a practical and stylish area for preparing and enjoying meals.

Outdoor Space: The property includes a well-maintained garden, offering a lovely outdoor space for leisure and recreation. Whether it's a morning coffee or evening relaxation, this area is perfect for enjoying the fresh air.

Parking: Convenient off-road parking is available, providing ease and security for vehicle owners.

Located in the desirable Shenley Lodge area, this home benefits from excellent local amenities, including schools, parks, and shopping facilities. With easy access to public transport and major road links, commuting is straightforward and convenient.

Don't miss the opportunity to make this charming property your new home. Contact us today to arrange a viewing.

  • 2 Bedroom(s)
  • 1 Bathroom(s)
  • 1 Living Room(s)

Address: Faraday Drive, , Shenley Lodge, MK5 7DB.

Shared ownership: £90,000

For more details and to book an appointment,  Call our dedicated sales team now.

Disclaimer : 99home.co.uk is the seller's agent for this property. Your conveyancer is legally responsible for ensuring any purchase agreement fully protects your position. We make detailed enquiries of the seller to ensure the information provided is as accurate as possible. Please inform us if you become aware of any information being inaccurate

Fraud warning : We have had reports of fraudulent activities in our industry. DO NOT make any payment directly to the landlord or the seller. Be cautious of emails or messages asking you to transfer funds to any account, please contact us by telephone immediately to verify the authenticity of the communication and under NO circumstances action the request. If you paid any deposit or rent to 99home, we will release the fund to the landlord once you have moved in. Your safety is our top priority!

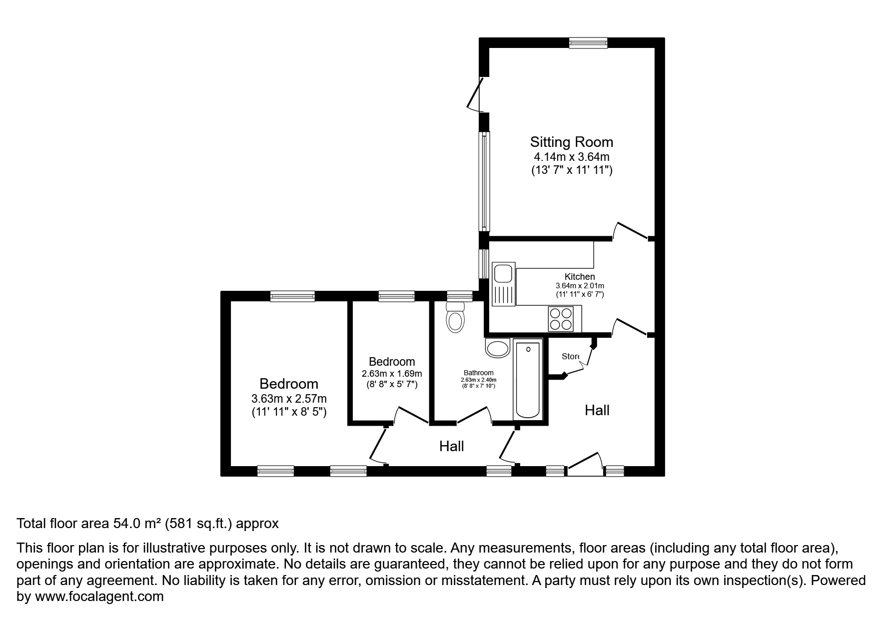
Property Floorplans

floor Plans Photo

EPC Graphs

floor Plans Photo

Property Location

Request Details Book Viewing View Brochure Make Offer Stamp Duty Calculator
Share mail icon

Key Features


Property Details

Property Type: Bungalow

Property Tenure: Leasehold

Council Tax Band: C

Bedroom(s): 2

Bathroom(s): 1

Living Room(s): 1

Address: Faraday Drive, , Shenley Lodge, MK5 7DB

Lease Hold property options

Remaining Lease in years: 87

Yearly Ground rent cost: 0.00

Yearly management cost: 384.96

Status Sold Subject to Contract

Features

Chain Free

Shared Ownership 30%

Rear Garden

Chain free

Monthly rent £361.9

Monthly service charge £32.08

Parking

N/A

Outside Space

Rear Garden

Heating

N/A


Cookies disclaimer

I agree Our site saves small pieces of text information (cookies) on your device in order to deliver better content and for statistical purposes. You can disable the usage of cookies by changing the settings of your browser. By browsing our website without changing the browser settings you grant us permission to store that information on your device.