Book viewings, submit offers and valuations online 24/7

  0203 5000 999         Login  / Register   

2 bed Apartment in 2 Longmeadow Passage , Hyde, SK14 2AL £850 Monthly

Let Agreed

Description

Property Ref: 14042
For viewing arrangement, please use 99home online viewing system.

Property Ref: 14042

Key features:

- Spacious First Floor Apartment
- 3rd room with use of luxury walk in dressing room or office space
- Modern fitted kitchen
- Contemporary fitted bathroom
- Fully Furnished £850

Full Description:

This modern, spacious apartment boasts a sumptuous, tasteful interior. Featuring a lavish living space, a large contemporary kitchen, a bright shower room, and two double bedrooms in addition to a large third room which could be used as office space or walk in wardrobe.
The property is situated within close proximity to Hyde centre, the motorway, and Newton for Hyde railway with Starbucks just around the corner.

The property is offered fully furnished & includes;

Lounge: sofa, tv unit & electric heater.

Kitchen: oven, hob, sink, draining board, fridge/freezer, cupboards, electric heater, table and chairs.

Shower Room: electric shower, toilet, sink, cupboard & heated towel rail.

Bedroom 1: double bed, mattress, chest of drawers, wardrobe, blind & electric heater.

Bedroom 2: double bed, mattress, chest of drawers, wardrobe, blind & electric heater.

Dressing Room/Office: office table, drawers & electric heater.

Viewings are advised.
.. ..

  • 2 Bedroom(s)
  • 1 Bathroom(s)
  • 2 Living Room(s)

Address: 2 Longmeadow Passage , Hyde, SK14 2AL.

Fixed Price: £850

For more details and to book an appointment,  Call our dedicated sales team now.

Disclaimer: No Administration fees, No check-in Inventory or No fees applicable while renting a property with 99Home. The information displayed about this property comprises a property advertisement. 99home.co.uk will not make any warranty for the accuracy or completeness of the advertisement or any linked or associated information, and 99home has no control over the content. This property advertisement does not constitute property particulars, the property may offer to tenants in same condition as they have seen on time of the viewing. The information is provided and maintained by 99home.co.uk

Fraud warning : We have had reports of fraudulent activities in our industry. DO NOT make any payment directly to the landlord or the seller. Be cautious of emails or messages asking you to transfer funds to any account, please contact us by telephone immediately to verify the authenticity of the communication and under NO circumstances action the request. If you paid any deposit or rent to 99home, we will release the fund to the landlord once you have moved in. Your safety is our top priority. Please go through How to rent Guide before renting a property!

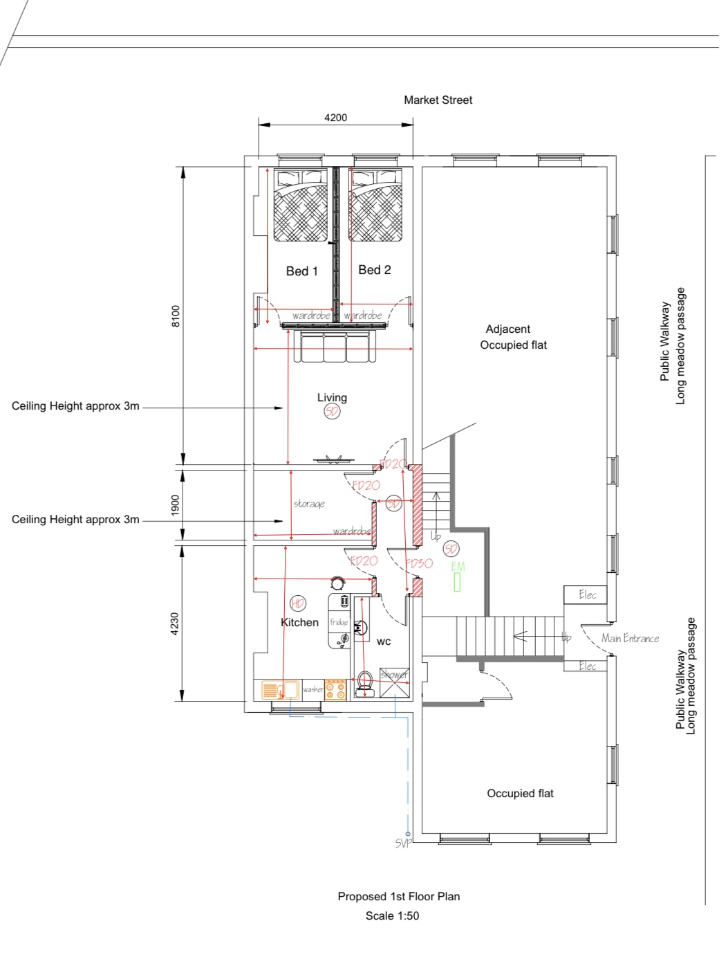
Property Floorplans

floor Plans Photo

EPC Graphs

floor Plans Photo

Property Location

Request Details Book Viewing View Brochure Make Offer
Share mail icon

Key Features


Property Details

Property Type: Apartment

Property Tenure: Let Agreed

Council Tax Band: A

Bedroom(s): 2

Bathroom(s): 1

Living Room(s): 2

Available From: Oct. 5, 2024, 1 a.m.

Address: 2 Longmeadow Passage , Hyde, SK14 2AL

Features

Furnished

Spacious 3rd room used for office space or dressing room

Price & Bills

Deposit £850.00

Rent PCM £850.00

Bills Included

Tenant Preference

Parking

On street

Outside Space

N/A

Heating

Electric Heating


Cookies disclaimer

I agree Our site saves small pieces of text information (cookies) on your device in order to deliver better content and for statistical purposes. You can disable the usage of cookies by changing the settings of your browser. By browsing our website without changing the browser settings you grant us permission to store that information on your device.