Book viewings, submit offers and valuations online 24/7

  0203 5000 999         Login  / Register   

3 bed Terraced in Como Road Forest Hill, London, SE23 2JN £700,000

Under Offer

Description

Property Ref: 14108
For viewing arrangement, please use 99home online viewing system.

Property Ref: 14108

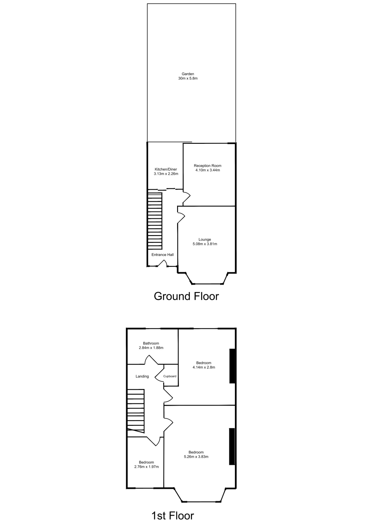
A charming three bedroom terraced house in need of modernization for sale on Como Road with a private rear garden approx. 100ft/30m..

This property comprises a large double reception room front to rear, separate kitchen, bathroom, three bedrooms, rear reception leading directly on to a large private rear garden.

Further benefits include plenty of storage, an abundance of light, many original features, potential to extend (STPP) and so much more.

Located approximately 0.6 miles from Forest Hill station, the property offers fantastic transport links into London Bridge, Canada Water, Shoreditch, Whitechapel, Highbury and Islington and many other locations. It is also just a short walk to various amenities including a variety of restaurants, coffee shops, cafes, gastro pubs, parks and very popular local schools. In Forest Hill and Sydenham.
--

Property Type: Terraced
Full selling price: £700000.00
Pricing Options: Offers in the region of
Tenure: Freehold
Council tax band: D
EPC rating: C
Measurement: 893.92 square feet.
Outside Space: Front Garden, Rear Garden
Parking: On street
Heating Type: Solar Water
Chain Sale or Chain Free: Chain Free.
----------------------------------------------------------------------------------------------------

  • 3 Bedroom(s)
  • 1 Bathroom(s)
  • 2 Living Room(s)

Address: Como Road Forest Hill, London, SE23 2JN.

Guide Price: £700,000

For more details and to book an appointment,  Call our dedicated sales team now.

Disclaimer : 99home.co.uk is the seller's agent for this property. Your conveyancer is legally responsible for ensuring any purchase agreement fully protects your position. We make detailed enquiries of the seller to ensure the information provided is as accurate as possible. Please inform us if you become aware of any information being inaccurate

Fraud warning : We have had reports of fraudulent activities in our industry. DO NOT make any payment directly to the landlord or the seller. Be cautious of emails or messages asking you to transfer funds to any account, please contact us by telephone immediately to verify the authenticity of the communication and under NO circumstances action the request. If you paid any deposit or rent to 99home, we will release the fund to the landlord once you have moved in. Your safety is our top priority!

Property Floorplans

floor Plans Photo

EPC Graphs

floor Plans Photo

Property Location

Request Details Book Viewing View Brochure Make Offer Stamp Duty Calculator
Share mail icon

Key Features


Property Details

Property Type: Terraced

Property Tenure: Freehold

Council Tax Band: D

Bedroom(s): 3

Bathroom(s): 1

Living Room(s): 2

Address: Como Road Forest Hill, London, SE23 2JN

Features

Chain Free

Prime Location

Close to Train station

Close to School

Double Glazed

Freehold

Three Bedrooms

Family Home

Huge Potential To Remodel & Extend (STPP)

Approximate 100ft / 30m Rear Garden

Sought After Quiet Residential Street

Close for Forest Hill Station 0.6 miles

Local Restaurants, Pubs and Shops.,

Good Selection of Local Schools

Parking

On street

Outside Space

Front Garden

Rear Garden

Heating

Gas Central Heating

Solar Powered


Cookies disclaimer

I agree Our site saves small pieces of text information (cookies) on your device in order to deliver better content and for statistical purposes. You can disable the usage of cookies by changing the settings of your browser. By browsing our website without changing the browser settings you grant us permission to store that information on your device.