Book viewings, submit offers and valuations online 24/7

  0203 5000 999         Login  / Register   

Retail Property in Royal Star Arcade, High Street, , Maidstone, ME14 1JL £3,333 Monthly

Available

Description

Property Ref: 15712
For viewing arrangement, please use 99home online viewing system.

Property Ref: 15712

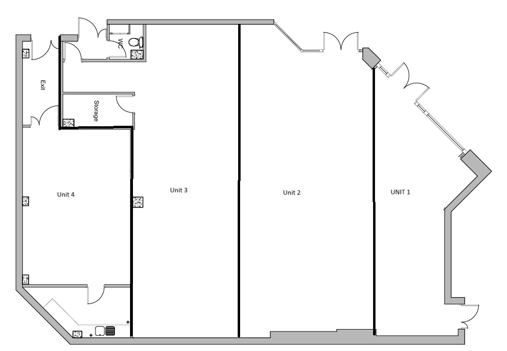
Comprising a very large main retail showroom, smaller rear showroom or storage, WC and storage area this versatile space is available to LET in the Royal Star Arcade nestled in between Fremlin Walk and the High Street.

The space can be used for a variety of retail purposes.

The space can also be divided into smaller units creating 2, 3 or 4 smaller units, POA


Property Type: Retail Property
Full Renting price: £3333.00
Pricing Options: No Status
EPC rating:C
Measurement: 2690 sq.ft.
Parking: Permit
Heating Type: Electric Heating
----------------------------------------------------------------------------------------------------

  • Bedroom(s)
  • Bathroom(s)
  • 0 Living Room(s)

Address: Royal Star Arcade, High Street, , Maidstone, ME14 1JL.

No Status: £3,333

For more details and to book an appointment,  Call our dedicated sales team now.

Disclaimer: No Administration fees, No check-in Inventory or No fees applicable while renting a property with 99Home. The information displayed about this property comprises a property advertisement. 99home.co.uk will not make any warranty for the accuracy or completeness of the advertisement or any linked or associated information, and 99home has no control over the content. This property advertisement does not constitute property particulars, the property may offer to tenants in same condition as they have seen on time of the viewing. The information is provided and maintained by 99home.co.uk

Fraud warning : We have had reports of fraudulent activities in our industry. DO NOT make any payment directly to the landlord or the seller. Be cautious of emails or messages asking you to transfer funds to any account, please contact us by telephone immediately to verify the authenticity of the communication and under NO circumstances action the request. If you paid any deposit or rent to 99home, we will release the fund to the landlord once you have moved in. Your safety is our top priority. Please go through How to rent Guide before renting a property!

Property Floorplans

floor Plans Photo

EPC Graphs

floor Plans Photo

Property Location

Request Details Book Viewing View Brochure Make Offer
Share mail icon

Key Features


Property Details

Property Type: Retail Property

Property Tenure: Available

Council Tax Band: None

Bedroom(s):

Bathroom(s):

Living Room(s): 0

Available From: Oct. 9, 2025, 1 a.m.

Address: Royal Star Arcade, High Street, , Maidstone, ME14 1JL

Features

Price & Bills

Deposit £19228.00

Rent PCM £3333.00

Bills Included

Tenant Preference

Parking

Permit

Outside Space

N/A

Heating

Electric Heating

Solar Powered


Cookies disclaimer

I agree Our site saves small pieces of text information (cookies) on your device in order to deliver better content and for statistical purposes. You can disable the usage of cookies by changing the settings of your browser. By browsing our website without changing the browser settings you grant us permission to store that information on your device.