Book viewings, submit offers and valuations online 24/7

  0203 5000 999         Login  / Register   

Land in Albion Street , Jewellery Quarter, Birmingham, B1 3EP £895,000

Available

Description

Property Ref: 16098
For viewing arrangement, please use 99home online viewing system.

Property Ref: 16098

RARE INVESTOR & DEVELOPER OPPORTUNITY

Prime B1 Consented Development Site | Albion Street Bham JQ B1

Freehold interest mixed-use opportunity with planning consent

Located in the heart of the Jewellery Quarter Golden Triangle between Warstone Lane & St Pauls Square.

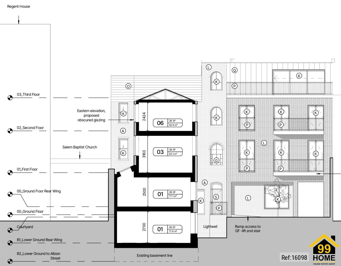
13 Units total.
9 Dwellings Class C3 (1x 1br and 8 x 2br)
4 Commercial Class E (Possible future change of use to C3 STP amendment)
Private gated shared Courtyard

BCC Planning Ref 2024 07812 PA. 7804 sq ft NSA.
(Residential 6,620 sq ft Commercial 1184 sq ft).

15 minute walk to Colmore Row 20 minute walk to future HS2 Curzon Street
5 minute walk to JQ Train and Tram station (Chiltern Line London Marylebone)

Permission for 9 residential apartments and 4 Class E commercial units possible future conversion to C3 STP amendment.

Non-Statutory Listed. No Grade restrictions. Established planning anchor prime city core.

Project comprises strategic total demolition of No. 37 (unfettered full site access) and the part-demolition and renovation of No. 38 front & 39 at rear.

Unconditional offers invited. No Deal Sourcers. Principal Enquiries only.

Property Type: Plot
Full selling price: £895000.00
Pricing Options: Offers in excess of
Tenure: Freehold
Outside Space: Communal Garden, Balcony, Terrace
Parking: Communal
Chain Sale or Chain Free: Chain free
Possession of the property: Self-occupied

--------------------------------------------------------------------------------------------------------

  • 0 Bedroom(s)
  • 0 Bathroom(s)
  • 0 Living Room(s)

Address: Albion Street , Jewellery Quarter, Birmingham, B1 3EP.

Offers in excess of: £895,000

For more details and to book an appointment,  Call our dedicated sales team now.

Disclaimer : 99home.co.uk is the seller's agent for this property. Your conveyancer is legally responsible for ensuring any purchase agreement fully protects your position. We make detailed enquiries of the seller to ensure the information provided is as accurate as possible. Please inform us if you become aware of any information being inaccurate

Fraud warning : We have had reports of fraudulent activities in our industry. DO NOT make any payment directly to the landlord or the seller. Be cautious of emails or messages asking you to transfer funds to any account, please contact us by telephone immediately to verify the authenticity of the communication and under NO circumstances action the request. If you paid any deposit or rent to 99home, we will release the fund to the landlord once you have moved in. Your safety is our top priority!

Property Location

Request Details Book Viewing View Brochure Make Offer Stamp Duty Calculator
Share mail icon

Key Features


Property Details

Property Type: Land

Property Tenure: Freehold

Council Tax Band:

Bedroom(s): 0

Bathroom(s): 0

Living Room(s): 0

Address: Albion Street , Jewellery Quarter, Birmingham, B1 3EP

Features

Investment Opportunity

Prime Location

Close to Train station

Freehold

Prime B1 Consented Development Site | Mixed Use | Albion Street Bham JQ B1

Consent Granted BCC Planning Ref 2024 07812 PA

9 Dwellings Class C3 (1x 1br and 8 x 2br)

4 Commercial Class E (Possible future change of use to C3 STP)

Not - Listed. No Grade restrictions.

Established planning anchor prime city core.

Demolition approved 37 offering unrestricted site access

Rare Development Opportunity

Parking

Communal

Outside Space

Communal Garden

Balcony

Terrace

Heating

N/A


Cookies disclaimer

I agree Our site saves small pieces of text information (cookies) on your device in order to deliver better content and for statistical purposes. You can disable the usage of cookies by changing the settings of your browser. By browsing our website without changing the browser settings you grant us permission to store that information on your device.