Book viewings, submit offers and valuations online 24/7

  0203 5000 999         Login  / Register   

2 bed Apartment in 227 Wimbledon Park Road , Southfields, SW18 5RJ £649,000

Available

Description

Property Ref: 16252
For viewing arrangement, please use 99home online viewing system.

Property Ref: 16252

Luxury Living in the Heart of Southfields Village

**An immaculate two-bedroom, two-bathroom apartment in a highly regarded modern development, complete with private balcony and secure underground parking.**

Situated in a premier new-build development, this residence represents the pinnacle of contemporary urban living. Cleverly designed to maximize both natural light and internal space, the apartment is finished to an exacting standard with high-specification technology throughout.

The Residence

* Exceptional Entertaining: The expansive open-plan kitchen and reception room features well-defined sitting and dining areas. Floor-to-ceiling glass leads to a private decked terrace, offering far-reaching views across the London skyline.

* Superior Specification: Experience total comfort with underfloor heating throughout, a clean-air filtration system, data wiring, and a secure video entry system.

* Elegant Bedrooms: Two generous double bedrooms, including a principal suite boasting bespoke wardrobes with illuminated hanging rails and a stunning ensuite shower room.

* Refined Details: A wide entrance hall provides built-in storage, leading to a sleek, well-appointed guest bathroom suite.

Unrivaled Location & Amenities

Located in the vibrant center of Southfields Village, this property offers a ‘lifestyle at your doorstep’ experience:

* On-Site Convenience: The building hosts a M&S Foodhall and a 24-hour TheGym, offering ultimate daily convenience.

* Village Charm: Step outside to discover Southfields' famous artisan shops, boutique eateries, and local supermarkets.

* Commuter’s Dream: Located within a 2-minute walk of Southfields Station (District Line) for effortless access to Central London.

* Added Benefits: The property includes secure private parking and access to a beautifully landscaped residents' communal roof garden.

---

**Property Highlights:**

* Two Double Bedrooms & Two Bathrooms
* Private Decked Terrace with city views
* Secure Underground Parking
* 24-Hour TheGym & M&S Foodhall on-site
* 2-Minute Walk to Southfields Station

Property Type: Apartment
Full selling price: £649000.00
Pricing Options: Fixed Price
Tenure: Leasehold
Remaining lease (In Year): 115
Yearly Ground Rent Cost: £550.00
Yearly Management Cost: £3400.00
Council tax band: E
EPC rating: B
Measurement: 742.71sq.ft.
Outside Space: Communal Garden, Shared Garden, Balcony, Terrace
Parking: Allocated, Garage, Gated, Private, Residents, Covered, Off street
Heating Type: Gas Central Heating, Underfloor Heating,Eco Friendly
Chain Sale or Chain Free: Chain free
Possession of the property: Self-occupied
------------------------------------------------------------------------------------------------------

  • 2 Bedroom(s)
  • 2 Bathroom(s)
  • 1 Living Room(s)

Address: 227 Wimbledon Park Road , Southfields, SW18 5RJ.

Fixed Price: £649,000

For more details and to book an appointment,  Call our dedicated sales team now.

Disclaimer : 99home.co.uk is the seller's agent for this property. Your conveyancer is legally responsible for ensuring any purchase agreement fully protects your position. We make detailed enquiries of the seller to ensure the information provided is as accurate as possible. Please inform us if you become aware of any information being inaccurate

Fraud warning : We have had reports of fraudulent activities in our industry. DO NOT make any payment directly to the landlord or the seller. Be cautious of emails or messages asking you to transfer funds to any account, please contact us by telephone immediately to verify the authenticity of the communication and under NO circumstances action the request. If you paid any deposit or rent to 99home, we will release the fund to the landlord once you have moved in. Your safety is our top priority!

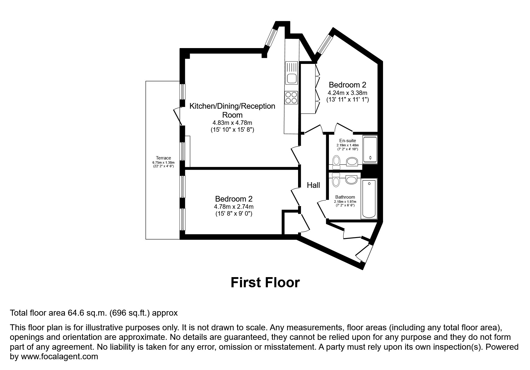
Property Floorplans

floor Plans Photo

EPC Graphs

floor Plans Photo

Property Location

Request Details Book Viewing View Brochure Make Offer Stamp Duty Calculator
Share mail icon

Key Features


Property Details

Property Type: Apartment

Property Tenure: Leasehold

Council Tax Band: E

Bedroom(s): 2

Bathroom(s): 2

Living Room(s): 1

Address: 227 Wimbledon Park Road , Southfields, SW18 5RJ

Lease Hold property options

Remaining Lease in years: 115

Yearly Ground rent cost: 550.00

Yearly management cost: 3400.00

Status Available

Features

Chain Free

Ready to Move

Investment Opportunity

Prime Location

Close to Train station

Close to School

Double Glazed

City views

Quiet

Parking

Allocated

Garage

Gated

Private

Residents

Covered

Off street

Outside Space

Communal Garden

Shared Garden

Balcony

Terrace

Heating

Double Glazing

Eco Friendly

Gas Central Heating

Underfloor Heating


Cookies disclaimer

I agree Our site saves small pieces of text information (cookies) on your device in order to deliver better content and for statistical purposes. You can disable the usage of cookies by changing the settings of your browser. By browsing our website without changing the browser settings you grant us permission to store that information on your device.