Book viewings, submit offers and valuations online 24/7

  0203 5000 999         Login  / Register   

1 bed Flat in 1 Marlborough Road , Gillingham, ME7 5BP £165,000

Available

Description

Property Ref: 16276
For viewing arrangement, please use 99home online viewing system.

Property Ref: 16276

These apartments form part of a building comprising six individual one-bedroom flats, each offered as a separate property listing and collectively presenting an excellent opportunity for both individual buyers and portfolio investors. The building is located on the well-established Marlborough Road in Gillingham, a highly convenient and sought-after residential location within walking distance of Gillingham Railway Station and a wide range of local amenities.

The apartments offer modern, low-maintenance living, each featuring a bright open-plan kitchen and living area designed to create a comfortable and sociable space. The kitchens are fitted with modern units and generous worktop space, flowing seamlessly into the lounge areas ideal for relaxing, entertaining, or working from home. The well-proportioned double bedrooms comfortably accommodate standard furnishings, while the contemporary shower rooms are finished in a clean, modern style with fitted enclosures, basins, and WCs.

Located at 1 Marlborough Road, Gillingham, ME7 5BP, the properties benefit from gas central heating, double glazing throughout, neutral decor, and practical layouts that maximise space and natural light. All apartments are chain free, self-occupied, and ready for immediate occupation.

Apartment sizes range from 39 sq m to 70 sq m, with EPC ratings of B and C across the building. The individual guide prices are as follows:

Flat 1 (46 sq m, EPC C) – £165,000

Flat 2 (39 sq m, EPC C) – £175,000

Flat 4 (39 sq m, EPC C) – £175,000

Flat 6 (40 sq m, EPC B) – £175,000

Flat 7 (40 sq m, EPC B) – £175,000

Flat 10 (70 sq m, EPC B) – £215,000

The revised combined guide value for all six apartments is £1,080,000, making this a compelling proposition for buyers seeking a multi-unit or full-block acquisition in a strong rental location.

Viewing appointments must be arranged through the 99home viewing system.

For further information and to book your viewing, please contact our dedicated sales team today

Property Type: Flat
Full selling price: £165000.00
Pricing Options: Guide Price
Tenure: Freehold
Council tax band: A
EPC rating: C
Measurement: 419.793 sq.ft.
Parking: Permit, On street
Heating Type: Double Glazing,Gas Central Heating
Chain Sale or Chain Free: Chain free
Possession of the property: Self-occupied

-------------------------------------------------------------------------------------------------------

  • 1 Bedroom(s)
  • 1 Bathroom(s)
  • 1 Living Room(s)

Address: 1 Marlborough Road , Gillingham, ME7 5BP.

Guide Price: £165,000

For more details and to book an appointment,  Call our dedicated sales team now.

Disclaimer : 99home.co.uk is the seller's agent for this property. Your conveyancer is legally responsible for ensuring any purchase agreement fully protects your position. We make detailed enquiries of the seller to ensure the information provided is as accurate as possible. Please inform us if you become aware of any information being inaccurate

Fraud warning : We have had reports of fraudulent activities in our industry. DO NOT make any payment directly to the landlord or the seller. Be cautious of emails or messages asking you to transfer funds to any account, please contact us by telephone immediately to verify the authenticity of the communication and under NO circumstances action the request. If you paid any deposit or rent to 99home, we will release the fund to the landlord once you have moved in. Your safety is our top priority!

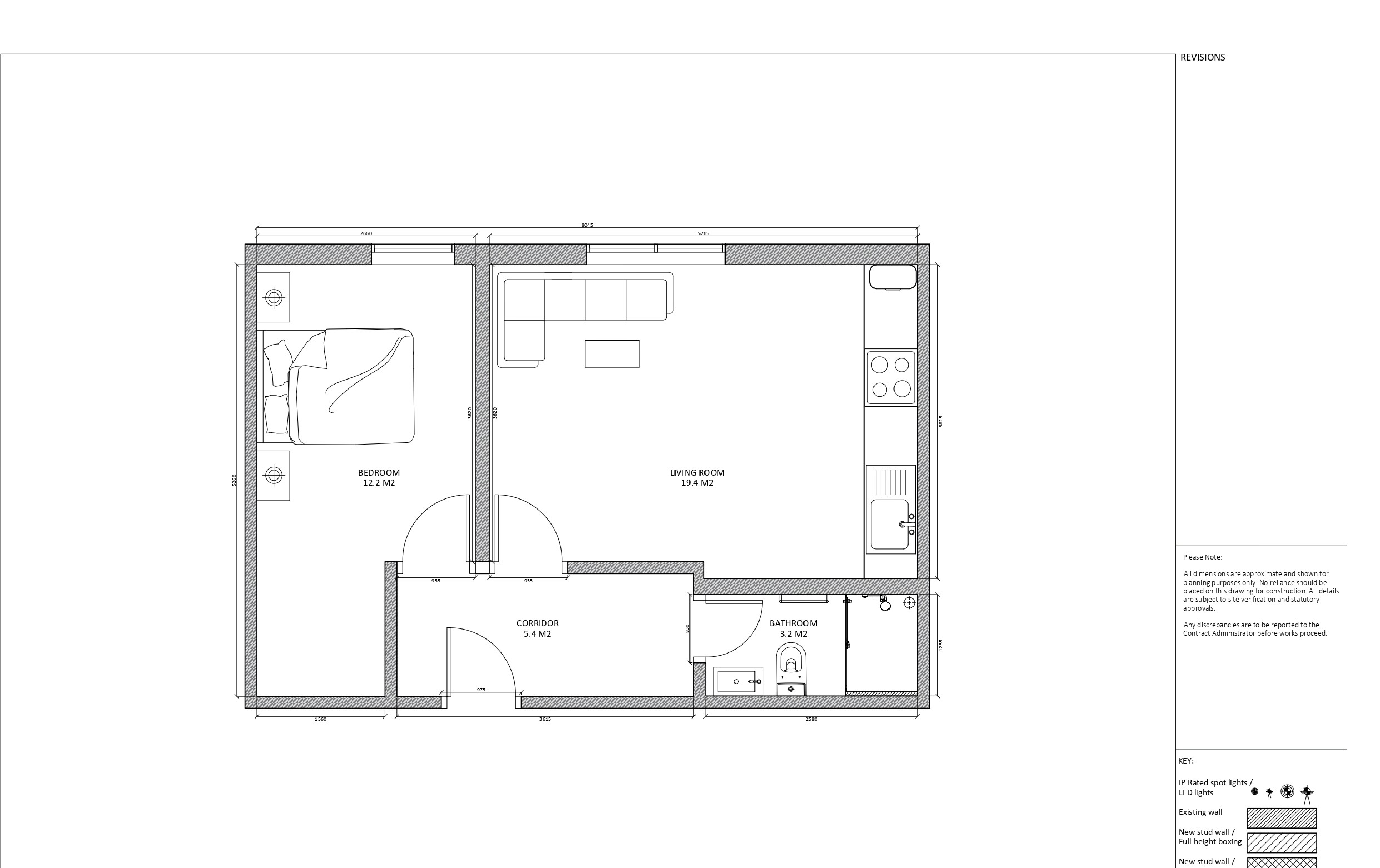
Property Floorplans

floor Plans Photo

EPC Graphs

floor Plans Photo

Property Location

Request Details Book Viewing View Brochure Make Offer Stamp Duty Calculator
Share mail icon

Key Features


Property Details

Property Type: Flat

Property Tenure: Freehold

Council Tax Band: A

Bedroom(s): 1

Bathroom(s): 1

Living Room(s): 1

Address: 1 Marlborough Road , Gillingham, ME7 5BP

Features

Chain Free

Ready to Move

Investment Opportunity

Prime Location

Close to Train station

Close to School

Double Glazed

Freehold

Walking distance of Gillingham railway station with frequent services to London and across the South East

Easy road access including links to the M2 and A2

Residents are close to a vibrant high street, markets, cafés, bars and independent shops

Nearby healthcare facilities including Medway Maritime Hospital and multiple GP practices

Several primary and secondary schools within walking distance, such as Brompton Academy and Oasis Academy Skinner Street

Area is attractive to commuters, young professionals, families, and students (Medway, Kent, Canterbury University).

Outstanding outdoor and leisure attractions (Great Lines Heritage Park, Admiral’s Gardens, Riverside Country Park)

Parking

Permit

On street

Outside Space

N/A

Heating

Double Glazing

Gas Central Heating

Solar Powered


Cookies disclaimer

I agree Our site saves small pieces of text information (cookies) on your device in order to deliver better content and for statistical purposes. You can disable the usage of cookies by changing the settings of your browser. By browsing our website without changing the browser settings you grant us permission to store that information on your device.