Book viewings, submit offers and valuations online 24/7

  0203 5000 999         Login  / Register   

4 bed Detached Bungalow in Sanday , Orkney, KW17 2BP £340,000

Available

Description

Property Ref: 16361
For viewing arrangement, please use 99home online viewing system.

Property Ref: 16361

Galilee is a beautifully renovated stone home offering 173 SqM of flexible accommodation, set within approximately 12 acres of private land stretching to the dunes and shoreline of the Bay of Sowerdie.

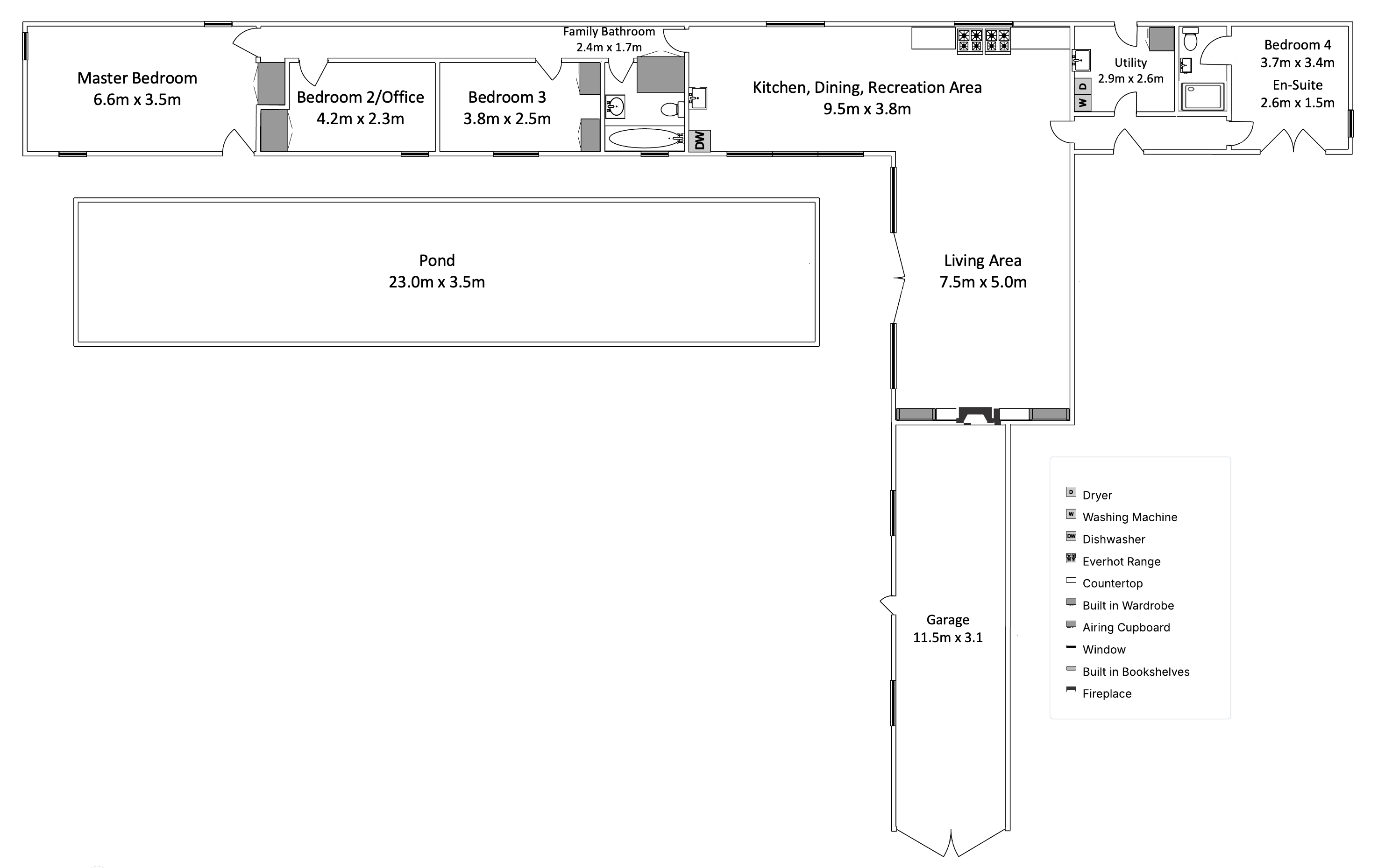
At the heart of the property is an exceptional open plan living, kitchen and dining space extending to almost 390 sq ft. With exposed beams, high ceilings and a full wall of floor-to-ceiling glazing overlooking a 23 metre reflecting pond and the loch beyond, this light filled room forms the true focal point of the home. A feature fireplace creates warmth and atmosphere, while the layout comfortably accommodates large gatherings or everyday family life.

The generous principal bedroom occupies a peaceful position at one end of the house, complete with skylight above the bed and direct access outdoors. Three further bedrooms provide flexible accommodation, including a double with en-suite shower room and a versatile room ideal as a home office or craft space. A contemporary family bathroom and well-proportioned utility room add practicality to the layout.

The property benefits from underfloor heating, double glazing and an EPC rating of C, reflecting the extensive renovation completed around 2012.

Beyond the house, the land is arranged across four fields, two suitable as enclosed paddocks. A stable with water and power, substantial building with potential to be made into studio or workshop, large garage and sheltered walled garden. The wind turbine generates approximately £6,000 to £8,000 per annum through a feed in tariff, reducing electricity costs while adding a rare income producing asset.

Galilee offers the increasingly rare combination of character, space, privacy and direct coastal connection, all within a well-served island community with air and ferry links to Orkney Mainland.

Property Type: Detached Bungalow
Full selling price: £340000.00
Pricing Options: Offers in excess of
Tenure: Freehold
Council tax band: E
EPC rating: C
Measurement:1862.16 sq.ft.
Outside Space: Front Garden, Rear Garden
Parking: Garage, Private, Off street
Heating Type: Double Glazing,Underfloor Heating
Chain Sale
Possession of the property: Self-occupied..

-------------------------------------------------------------------------------------------------------

  • 4 Bedroom(s)
  • 2 Bathroom(s)
  • 1 Living Room(s)

Address: Sanday , Orkney, KW17 2BP.

Offers in excess of: £340,000

For more details and to book an appointment,  Call our dedicated sales team now.

Disclaimer : 99home.co.uk is the seller's agent for this property. Your conveyancer is legally responsible for ensuring any purchase agreement fully protects your position. We make detailed enquiries of the seller to ensure the information provided is as accurate as possible. Please inform us if you become aware of any information being inaccurate

Fraud warning : We have had reports of fraudulent activities in our industry. DO NOT make any payment directly to the landlord or the seller. Be cautious of emails or messages asking you to transfer funds to any account, please contact us by telephone immediately to verify the authenticity of the communication and under NO circumstances action the request. If you paid any deposit or rent to 99home, we will release the fund to the landlord once you have moved in. Your safety is our top priority!

Property Floorplans

floor Plans Photo

EPC Graphs

floor Plans Photo

Property Location

Request Details Book Viewing View Brochure Make Offer Stamp Duty Calculator
Share mail icon

Key Features


Property Details

Property Type: Detached Bungalow

Property Tenure: Freehold

Council Tax Band: E

Bedroom(s): 4

Bathroom(s): 2

Living Room(s): 1

Address: Sanday , Orkney, KW17 2BP

Features

Ready to Move

Prime Location

Close to School

Double Glazed

Freehold

Fish Pond

Rare Coastal Smallholding with 12 Acres

Unique 4 Bedroom Detached Home - 1,863 sq ft

Large Open Plan Kitchen-Living-Dining Space - 389 sq ft

Comes with ownership of own private stretch of beach

Overlooking North Loch, Great for Kayaking

Wind Turbine Generating £6,000–£8,000 Per Year

Stable Block with Water and Power

Large Outbuilding with Renovation Potential

Parking

Garage

Private

Off street

Outside Space

Front Garden

Rear Garden

Enclosed Garden

Heating

Double Glazing

Underfloor Heating


Cookies disclaimer

I agree Our site saves small pieces of text information (cookies) on your device in order to deliver better content and for statistical purposes. You can disable the usage of cookies by changing the settings of your browser. By browsing our website without changing the browser settings you grant us permission to store that information on your device.