Book viewings, submit offers and valuations online 24/7

  0203 5000 999         Login  / Register   

4 bed End of Terrace in Farmdale Road , East Greenwich, SE10 0LS £675,000

Available

Description

Property Ref: 16413
For viewing arrangement, please use 99home online viewing system.

Property Ref: 16413


4 Bedroom End -Terrace House, Licensed HMO or Spacious Family Home, Greenwich SE10

Guide Price: £650,000 – £675,000

A versatile four-bedroom end-terrace house in sought-after Greenwich, currently licensed as a 4-bedroom HMO but equally well suited as a spacious family home, offering flexible accommodation arranged over three floors.

Located on a quiet residential street in Greenwich (SE10), the property benefits from excellent transport links, generous room sizes, multiple bathrooms and a private garden. The layout works well for both owner-occupiers seeking a large family home and investors looking for an income-producing property in a high-demand rental area.

The property also offers future potential to extend, with the previous owner having obtained planning permission for a rear extension (now expired), presenting an opportunity for buyers to enhance the property further and add value subject to obtaining the necessary consents.


Key Features

Guide Price £650,000 – £675,000

Licensed 4-Bedroom HMO

Flexible purchase – suitable for investors or owner occupiers

End-terrace house offering additional light and privacy

Four generous bedrooms

Three bathrooms

Arranged over three floors

Large open-plan kitchen, lounge, conservatory

Private rear garden

Opportunity to extend (STPP) – previous rear extension planning now expired

Potential to increase internal space and future value through extension

Good room sizes throughout (larger than typical London homes)

Strong rental demand area

Excellent transport links into Central London

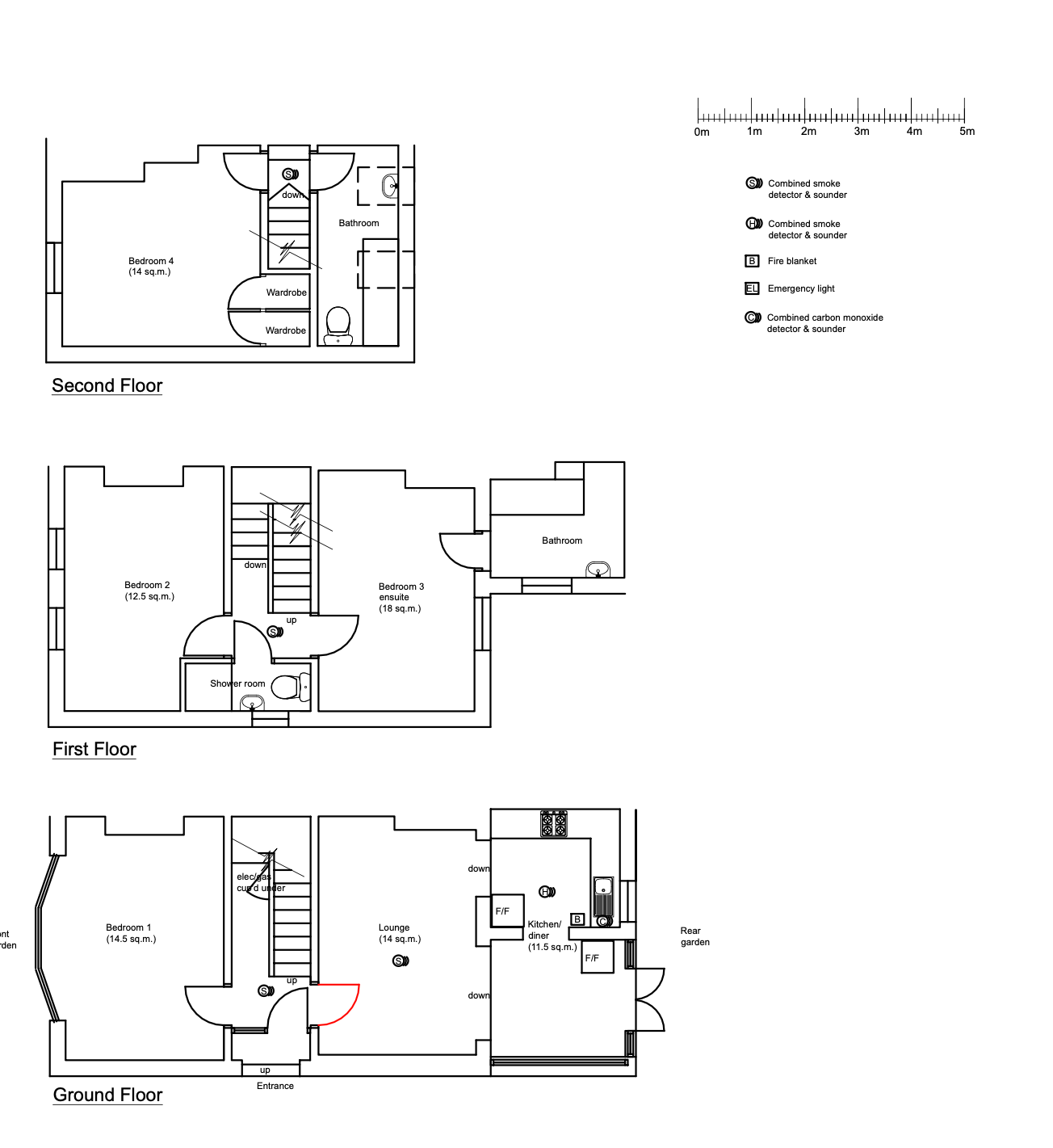
Accommodation

Ground Floor

The ground floor comprises a separate double bedroom at the front of the property, ideal for use as a guest bedroom, home office, or additional living space.

To the rear is a bright open-plan kitchen, lounge and conservatory area, creating a spacious communal living area with direct access to the private rear garden. This layout works particularly well for both family living and shared accommodation.

First Floor

The first floor provides two well-proportioned bedrooms.

One bedroom benefits from its own private bathroom with bath and wash basin.

The second bedroom is served by a separate shower room with WC and wash basin located in the corridor.

Top Floor

The top floor offers a further large double bedroom together with a private bathroom located just outside the room, comprising bath, wash basin and WC.

Several of the bathrooms benefit from natural light through windows, a feature that is often rare in many London homes.

Outside

To the rear of the property is a private garden, providing valuable outdoor space for relaxing, entertaining or outdoor dining.

The property also offers scope for further enhancement, with the previous owner having obtained planning permission for a rear extension (now expired), offering buyers the opportunity to reapply and expand the living space further, subject to planning approval.

Extending the property could significantly enhance both future resale value and rental income potential, making this an attractive opportunity for buyers seeking long-term value.

Investment Potential

The property is currently licensed as a 4-bedroom HMO, making it attractive to buy-to-let investors seeking a ready-configured property in a strong rental location.

Greenwich remains one of South East London’s most desirable rental areas, attracting professionals working in Canary Wharf, the City and Central London.

The layout of the property, with multiple bathrooms and generous room sizes, is particularly appealing for professional tenants.

Location

Farmdale Road is situated within the highly desirable Greenwich SE10 area.

Nearby transport links include:

Maze Hill Station

Westcombe Park Station

Both provide convenient rail services into London Bridge, Cannon Street and central London.

The property is also within easy reach of:

Greenwich Park

Greenwich town centre

Shops, cafés and restaurants

Local schools and everyday amenities

This combination of excellent transport connections, green spaces and strong local amenities makes the area highly desirable for both families and professionals.

Summary
Farmdale Road presents a rare opportunity to acquire a flexible property that works equally well as a spacious family home or an income-producing investment, with future potential to extend and add value, in one of South East London’s most popular residential locations.

Early viewing is highly recommended.

Property Type: End of Terrace
Full selling price: £675000.00
Pricing Options: Offers in the region of
Tenure: Freehold
Council tax band: C
EPC rating: E
Measurement:1173.27 sq.ft.
Outside Space: Front Garden, Rear Garden
Parking: Permit, On street
Heating Type: Gas Central Heating
Chain Sale or Chain Free:Chain free
Possession of the property:Tenanted( Will be vacant on 23th of April)...

------------------------------------------------------------------------------------------------------

  • 4 Bedroom(s)
  • 3 Bathroom(s)
  • 1 Living Room(s)

Address: Farmdale Road , East Greenwich, SE10 0LS.

Offers in the region of: £675,000

For more details and to book an appointment,  Call our dedicated sales team now.

Disclaimer : 99home.co.uk is the seller's agent for this property. Your conveyancer is legally responsible for ensuring any purchase agreement fully protects your position. We make detailed enquiries of the seller to ensure the information provided is as accurate as possible. Please inform us if you become aware of any information being inaccurate

Fraud warning : We have had reports of fraudulent activities in our industry. DO NOT make any payment directly to the landlord or the seller. Be cautious of emails or messages asking you to transfer funds to any account, please contact us by telephone immediately to verify the authenticity of the communication and under NO circumstances action the request. If you paid any deposit or rent to 99home, we will release the fund to the landlord once you have moved in. Your safety is our top priority!

Property Floorplans

floor Plans Photo

EPC Graphs

floor Plans Photo

Property Location

Request Details Book Viewing View Brochure Make Offer Stamp Duty Calculator
Share mail icon

Key Features


Property Details

Property Type: End of Terrace

Property Tenure: Freehold

Council Tax Band: C

Bedroom(s): 4

Bathroom(s): 3

Living Room(s): 1

Address: Farmdale Road , East Greenwich, SE10 0LS

Features

Chain Free

Ready to Move

Investment Opportunity

Prime Location

Close to Train station

Double Glazed

Freehold

HMO

An end terrace spacious 4 bedrooms house in EAST GREENWICH

Large bright rooms spread over 3 floors with 3 bathrooms

Excellent transport links - 3 minutes to WESTCOMBE PARK TRAIN STATION

Ready to move in

Licensed , compliant HMO in Article 4 area - great opportunity for investors

Opportunity to extend (STPP) – previous rear extension planning now expired

Potential to increase internal space and future value through extension

Parking

Permit

On street

Outside Space

Front Garden

Rear Garden

Heating

Gas Central Heating


Cookies disclaimer

I agree Our site saves small pieces of text information (cookies) on your device in order to deliver better content and for statistical purposes. You can disable the usage of cookies by changing the settings of your browser. By browsing our website without changing the browser settings you grant us permission to store that information on your device.