Book viewings, submit offers and valuations online 24/7

  0203 5000 999         Login  / Register   

5 bed Flat in Hillreach Rd , Woolwich, SE18 4AL £520,000

Available

Description

Property Ref: 16420
For viewing arrangement, please use 99home online viewing system.

Property Ref: 16420

5 Bed Apartment, Licensed HMO, Woolwich SE18

Guide Price: £520,000

A spacious five-bedroom apartment arranged over lower and upper ground floor levels, currently operating as a licensed HMO but equally suitable for owner-occupiers or families seeking a large home with flexible accommodation.

Located at Hillreach Road, Woolwich SE18, the property offers generous internal space, multiple bathrooms and access to a large shared rear garden, making it an attractive option for both investors and residential buyers.

The layout works well for professional sharers, while also offering the flexibility to be used as a large family home with multiple bedrooms and ample living space.


Key Features

Guide Price £520,000

Licensed 5-bedroom HMO

Flexible purchase – suitable for investors or owner occupiers

Arranged over lower and upper ground floor levels

Five bedrooms

One ensuite bedroom

Separate bathroom

Additional WC

Separate shower room

Large shared rear garden

Spacious accommodation throughout

Strong rental demand area

Excellent transport links




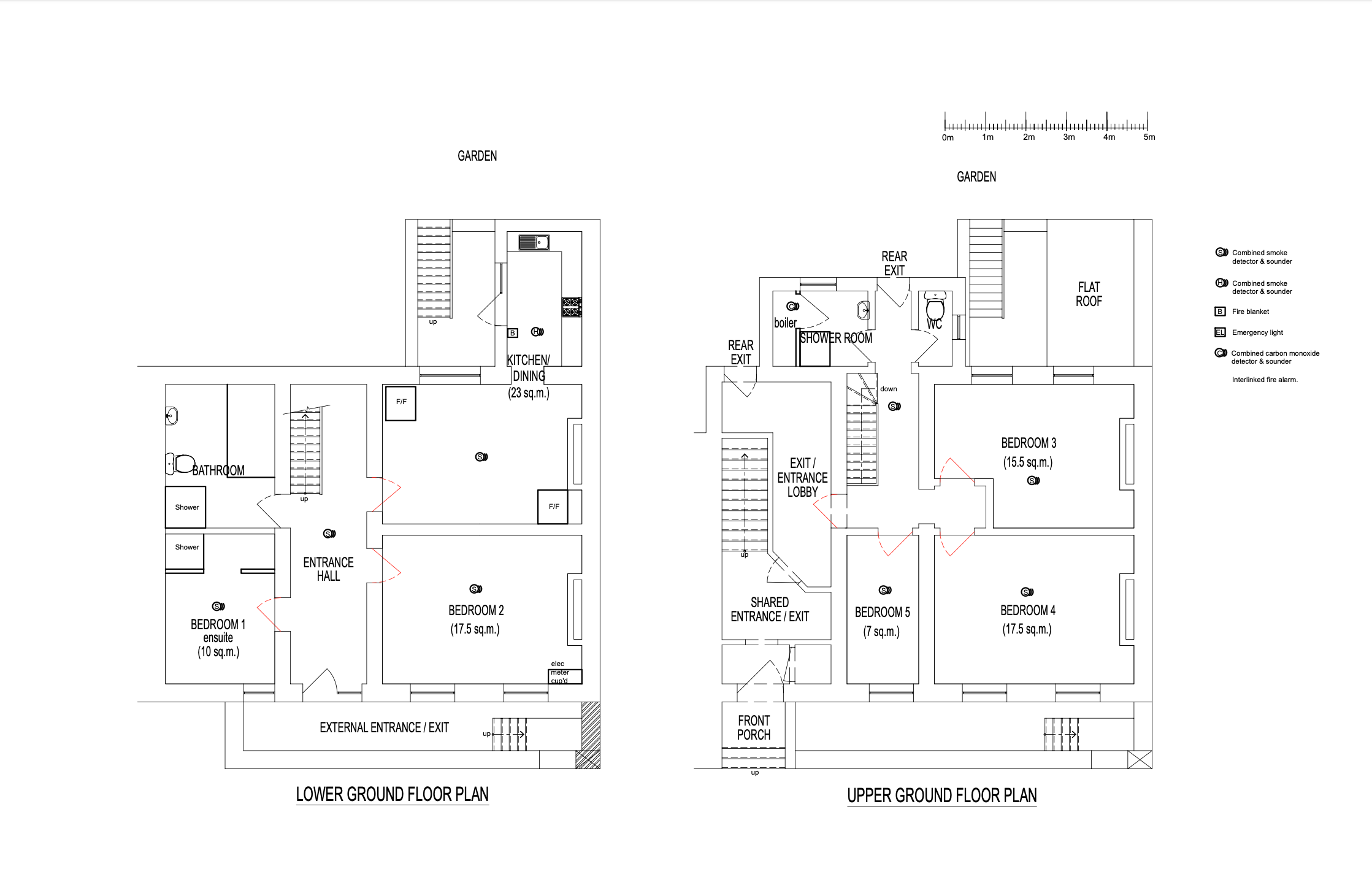
Accommodation

Upper Ground Floor

The upper level provides several well-proportioned bedrooms together with shared bathroom facilities.

One bedroom benefits from a private ensuite bathroom, providing additional convenience and privacy.

The floor also includes access to a separate WC and shower room, allowing comfortable use for multiple occupants.



Lower Ground Floor

The lower ground floor provides additional bedrooms together with further living space, offering flexible accommodation that works well for either shared occupation or family use.

The layout allows for good separation of rooms and communal areas, making the property particularly suitable for multi-occupancy living.


Outside

The property benefits from access to a large shared garden to the rear, providing valuable outdoor space for residents.

This area offers an ideal space for relaxing, socialising or outdoor dining — an attractive feature for both tenants and owner-occupiers.


Investment Potential

The property is currently configured as a 5-bedroom HMO, offering strong appeal to buy-to-let investors seeking a property in a high-demand rental location.

Woolwich has seen significant regeneration and investment in recent years, with strong demand from professionals working in Canary Wharf, the City and Central London.

The combination of five bedrooms and multiple bathrooms makes the property particularly attractive for professional sharers.



Location

Hillreach is located in Woolwich SE18, a well-connected South East London area that has benefited from substantial regeneration and infrastructure investment.


Transport connections include:

Woolwich Arsenal Station

Elizabeth Line (Crossrail) – providing fast access to Canary Wharf, Liverpool Street and Central London

DLR services

Mainline rail services

Residents are also within easy reach of:

Woolwich town centre

Shops, cafés and restaurants

River Thames waterfront

Local parks and amenities

The excellent transport connectivity and continued regeneration make Woolwich a popular location for both homeowners and renters.



Hillreach offers a rare opportunity to acquire a large and flexible five-bedroom property that works equally well as an income-producing HMO investment or a spacious family home.

With multiple bathrooms, generous accommodation and access to a large shared garden, the property provides excellent potential in a rapidly improving London location.

Early viewing is highly recommended.


Property Type: Flat
Full selling price: £520000.00
Pricing Options: Offers in excess of
Tenure: Leasehold
Remaining lease (In Years): 93
Yearly Ground Rent Cost: £100.00
Yearly Management Cost: £1140.00
Council tax band: C
EPC rating: C
Measurement: Bedrooms, Bathrooms, and Living Room
Outside Space: Communal Garden, Rear Garden
Parking: On street
Heating Type: Gas central Heating
Chain Sale or Chain Free: Chain Free
Possession of the property: Tenant...

  • 5 Bedroom(s)
  • 3 Bathroom(s)
  • 1 Living Room(s)

Address: Hillreach Rd , Woolwich, SE18 4AL.

Offers in excess of: £520,000

For more details and to book an appointment,  Call our dedicated sales team now.

Disclaimer : 99home.co.uk is the seller's agent for this property. Your conveyancer is legally responsible for ensuring any purchase agreement fully protects your position. We make detailed enquiries of the seller to ensure the information provided is as accurate as possible. Please inform us if you become aware of any information being inaccurate

Fraud warning : We have had reports of fraudulent activities in our industry. DO NOT make any payment directly to the landlord or the seller. Be cautious of emails or messages asking you to transfer funds to any account, please contact us by telephone immediately to verify the authenticity of the communication and under NO circumstances action the request. If you paid any deposit or rent to 99home, we will release the fund to the landlord once you have moved in. Your safety is our top priority!

Property Floorplans

floor Plans Photo

EPC Graphs

floor Plans Photo

Property Location

Request Details Book Viewing View Brochure Make Offer Stamp Duty Calculator
Share mail icon

Key Features


Property Details

Property Type: Flat

Property Tenure: Leasehold

Council Tax Band: C

Bedroom(s): 5

Bathroom(s): 3

Living Room(s): 1

Address: Hillreach Rd , Woolwich, SE18 4AL

Lease Hold property options

Remaining Lease in years: 93

Yearly Ground rent cost: 100.00

Yearly management cost: 1140.00

Status Available

Features

Chain Free

Ready to Move

Investment Opportunity

Prime Location

Close to Train station

Double Glazed

HMO

Spacious 5 bedrooms flat 3 bathrooms over 2 floors

Rear communal garden

Suitable for investors and owner occupiers

Licensed fully compliant HMO with very strong demand

Parking

On street

Outside Space

Communal Garden

Rear Garden

Heating

Gas Central Heating


Cookies disclaimer

I agree Our site saves small pieces of text information (cookies) on your device in order to deliver better content and for statistical purposes. You can disable the usage of cookies by changing the settings of your browser. By browsing our website without changing the browser settings you grant us permission to store that information on your device.