Book viewings, submit offers and valuations online 24/7

  0203 5000 999         Login  / Register   

5 bed Detached in Mount Drive , Oswestry, SY11 1BG £725,000

Available

Description

Property Ref: 16506
For viewing arrangement, please use 99home online viewing system.

Property Ref: 16506

The Summary

Tucked away at the culmination of Oswestry’s most prestigious private lane sits The Firs—a significant five-bedroom sanctuary of profound privacy. Entirely invisible from the road, this meticulously curated residence is a true hidden gem, designed around a dual-wing layout that offers a dedicated West Wing Wellness Retreat for adults and a vibrant Social Mezzanine for family connection. A home that offers the rare luxury of a countryside soundscape just a 5-minute stroll from the historic town center. Includes multi-generational Plug & Play potential and offered with No Forward Chain.

The Full Description

The Approach: A Gradual Reveal
​Tucked away at the culmination of a private, tree-lined lane lies a hidden gem. The experience of the home begins with this sense of arrival; as the sinuous meander of the driveway follows a graceful sweep, the residence slowly reveals itself. Positioned to follow the solar path, the architecture is rotated so the frontage captures the first light of the morning.

​The Arrival: A Sense of Scale
​Crossing the threshold, you are greeted by a larger-than-life Reception Gallery. This is a grand architectural statement that sets the tone for the entire residence. Bathed in light and offering a profound sense of volume, it serves as the central axis of the home, leading the eye upward to the mezzanine and outward toward the gardens through the internal glass.

The Social Axis: Formal yet Connected
​The ground floor is designed around a sophisticated part-open plan layout—offering the airy flow of modern living while retaining the refined intimacy of traditional reception rooms.

The Formal Dining Room: Viewed first from the gallery, the formal dining area is a masterclass in scale. Featuring bespoke cabinetry and views that stretch from the front to the back of the property, it is an expansive space designed for grand Sunday lunches and candlelit evenings.

The Drawing Room: First seen from the Dining room and now from the Reception, you enter a grand yet inviting space anchored by a striking dual-aspect see-through fireplace. This feature creates a visual bridge back to the dining area, allowing the warmth and glow of the hearth to be enjoyed from both rooms.

The Flex-Space: Adjacent to the main hub is a substantial further reception room. Currently a creative studio, its proportions make it an ideal high-spec home office, games room, or kids’ playroom, offering that essential door-closed quietude.

The Studio: The Sky-View Descent
​A set of broad, shallow steps lead down from the drawing room into the Lower Studio. This is the garden-level anchor of the glazed atrium, offering a dedicated workspace or creative retreat. With its own independent entrance, it provides the perfect footprint for a professional practice or a quiet, sun-drenched sanctuary separated from the main pulse of the home.

The Interior: A Dual-Wing Sanctuary
​The East Wing (The Family Domain): Positioned for the morning light, this wing houses generous double bedrooms and a Jack and Jill bathroom creating a self-contained suite. Central to this wing is the vibrant Social Mezzanine—a space where family can spill out from their private domains for morning connection and hot chocolates while still in their pajamas. Today, the area is bathed in light through elegant Juliet balconies; tomorrow, the design allows for the seamless addition of a fuller balcony extension.

The West Wing (The Adult Sanctuary): A self-contained retreat, biophilic by design, letting the outside in; a light-filled wellness gallery accessed from the principal bedroom. Here, you are suspended within the mature yew tree canopy, surveying the volume of your home through the two-storey glass perspective. It is the perfect place to be up without having to be out —staying connected to the life of the house from the peace of your own retreat.

The Heart: The Social Kitchen
​The expansive Social Kitchen features high-spec granite finishes and a grand range cooker. The space anchors its social function with a substantial American-style fridge nestled within a seamless bank of integrated cabinetry. With French doors opening directly onto the terrace, the kitchen becomes a literal extension of the garden.

The Rhythm & The Venture
​Life here is governed by the natural clock of the garden, from the Dawn Chorus and Midday Sun to the Summer Twilight by the fire. Yet, the parish bells remind you that the town's heartbeat is just a stone’s throw away—no need for the car when everything is within walking distance.

2 Mins: The cooling stream of Brogyntyn Park for dog walks and Cae Glas Park for award-winning floral displays.
​3 Mins: Artisan culture at The Willow Art Gallery and a pint of milk at one of two convenience stores.
​5 Mins: The historic gates of Bellan House and Oswestry School.

The Vision & The Foundation
​The structural heavy lifting is already complete for grander ambitions. The West Wing is primed for a bespoke two-storey addition, and the Wellness Area includes pre-installed Plug & Play infrastructure for a luxury ensuite. Beyond the walls, the master masonry continues with an engineering project of significant scale. A master stone craftsman has individually hand-faced a five-foot-high stone wall, which is hand-finished and backfilled with tons upon tons of high-grade compacted stone to create a rock-solid, level foundation pad. This is complemented by a purpose-built, stone-filled gabion system—a bespoke design manufactured specifically for this site—featuring 4mm heavy-duty wire mesh and integrated galvanized steel staircases. This elevated site is perfectly prepared for your choice of a glass-fronted home office, pool house, or summer retreat. A second matching staircase at the front leads to the stone-walled orchard, featuring a bountiful harvest of apples, raspberries, and morello cherries. Backed by a Fresh 2026 Building Control Completion Certificate and 2026-spec reinforced safety glass.

The Transaction
​Offered with No Forward Chain. To maintain the exclusivity of this sale, viewings are strictly reserved for pre-qualified buyers. Interested parties will be required to provide proof of cash funds or a formal Memorandum of Sale prior to an appointment being confirmed.

Property Type: Detached
Full selling price: £725000.00
Pricing Options: Guide Price
Tenure: Freehold
Council tax band: D
EPC rating: C
Measurement:254 sq.m.
Outside Space: Front Garden, Rear Garden, Enclosed Garden, Balcony, Terrace, Patio
Parking: Garage, Driveway, Gated, Private, Off street
Heating Type: Gas Central Heating
Chain Sale or Chain Free: Chain free
Possession of the property: Self-occupied

------------------------------------------------------------------------------------------------------

  • 5 Bedroom(s)
  • 2 Bathroom(s)
  • 4 Living Room(s)

Address: Mount Drive , Oswestry, SY11 1BG.

Guide Price: £725,000

For more details and to book an appointment,  Call our dedicated sales team now.

Disclaimer : 99home.co.uk is the seller's agent for this property. Your conveyancer is legally responsible for ensuring any purchase agreement fully protects your position. We make detailed enquiries of the seller to ensure the information provided is as accurate as possible. Please inform us if you become aware of any information being inaccurate

Fraud warning : We have had reports of fraudulent activities in our industry. DO NOT make any payment directly to the landlord or the seller. Be cautious of emails or messages asking you to transfer funds to any account, please contact us by telephone immediately to verify the authenticity of the communication and under NO circumstances action the request. If you paid any deposit or rent to 99home, we will release the fund to the landlord once you have moved in. Your safety is our top priority!

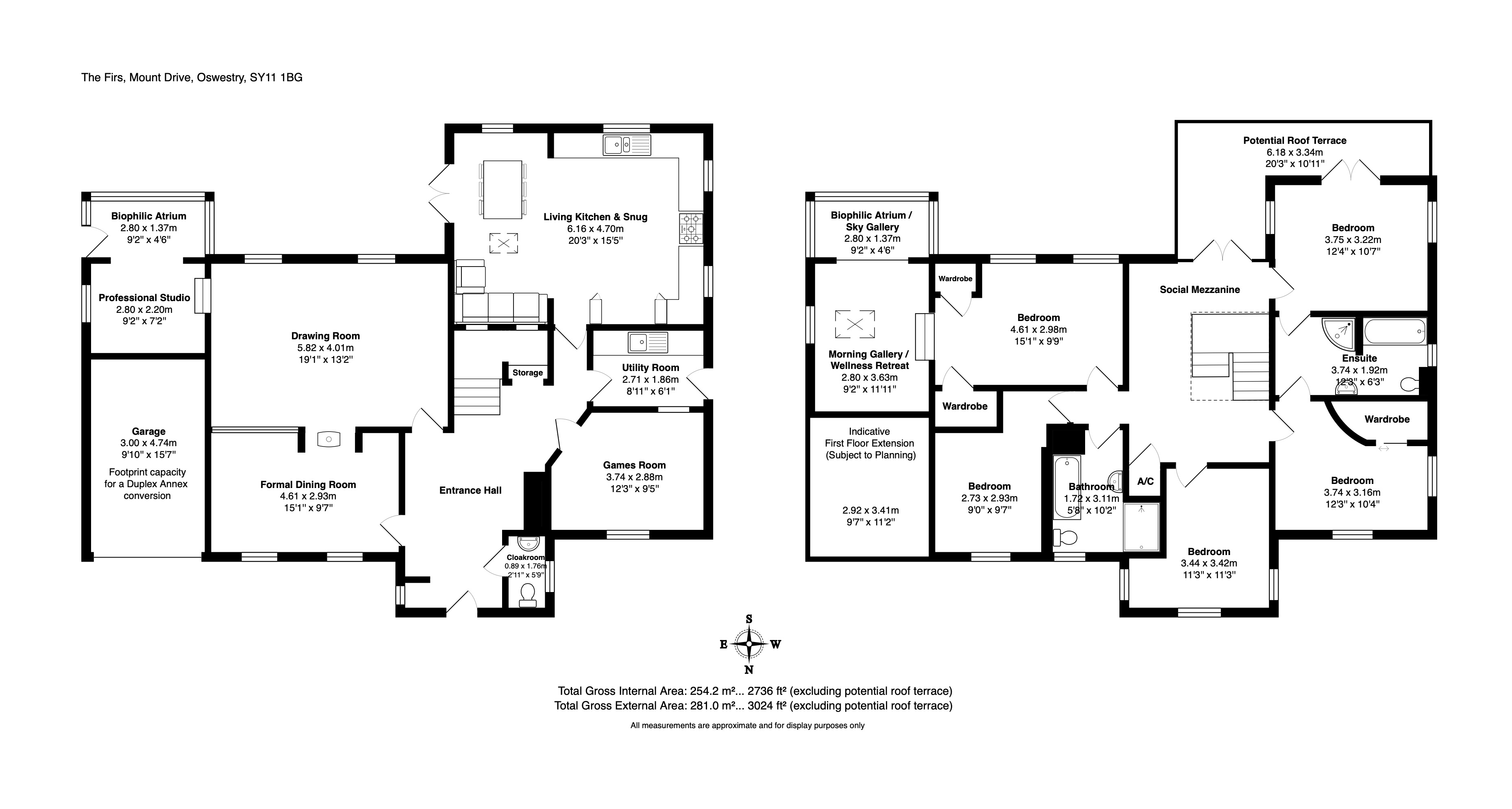
Property Floorplans

floor Plans Photo

EPC Graphs

floor Plans Photo

Property Location

Request Details Book Viewing View Brochure Make Offer Stamp Duty Calculator
Share mail icon

Key Features


Property Details

Property Type: Detached

Property Tenure: Freehold

Council Tax Band: D

Bedroom(s): 5

Bathroom(s): 2

Living Room(s): 4

Address: Mount Drive , Oswestry, SY11 1BG

Features

Chain Free

Ready to Move

Prime Location

Close to School

Double Glazed

Freehold

Parking

Garage

Driveway

Gated

Private

Off street

Outside Space

Front Garden

Rear Garden

Enclosed Garden

Balcony

Terrace

Patio

Heating

Gas Central Heating


Cookies disclaimer

I agree Our site saves small pieces of text information (cookies) on your device in order to deliver better content and for statistical purposes. You can disable the usage of cookies by changing the settings of your browser. By browsing our website without changing the browser settings you grant us permission to store that information on your device.