Book viewings, submit offers and valuations online 24/7

  0203 5000 999         Login  / Register   

Office in Crewe Green Road , Crewe, CW1 5NW £2,166 Monthly

Available

Description

Property Ref: 16567
For viewing arrangement, please use 99home online viewing system.

Property Ref: 16567

A stylish, self contained period office building. Comprising of 10 individual offices, gas heating, attractive gardened surrounds, courtyard area, courtyard buildings and basement area. There is parking available on the private road. The Mill House is very much a statement building.

Gross internal area 3067.25sqft

Courtyard Buildings 385sqft

Basement 284sqft



The Mill House is well located for access to the motorway network, Crewe Town Centre and Railway Station.


The property is offered on a full repairing and insuring lease.

Business rates - £6519per annum

Property Type: Office
Full Renting price: £2166.00
Pricing Options: No Status
EPC rating:E
Measurement: 3,736.25 sq.ft.
----------------------------------------------------------------------------------------------------

  • 0 Bathroom(s)
  • 0 Living Room(s)

Address: Crewe Green Road , Crewe, CW1 5NW.

No Status: £2,166

For more details and to book an appointment,  Call our dedicated sales team now.

Disclaimer: No Administration fees, No check-in Inventory or No fees applicable while renting a property with 99Home. The information displayed about this property comprises a property advertisement. 99home.co.uk will not make any warranty for the accuracy or completeness of the advertisement or any linked or associated information, and 99home has no control over the content. This property advertisement does not constitute property particulars, the property may offer to tenants in same condition as they have seen on time of the viewing. The information is provided and maintained by 99home.co.uk

Fraud warning : We have had reports of fraudulent activities in our industry. DO NOT make any payment directly to the landlord or the seller. Be cautious of emails or messages asking you to transfer funds to any account, please contact us by telephone immediately to verify the authenticity of the communication and under NO circumstances action the request. If you paid any deposit or rent to 99home, we will release the fund to the landlord once you have moved in. Your safety is our top priority. Please go through How to rent Guide before renting a property!

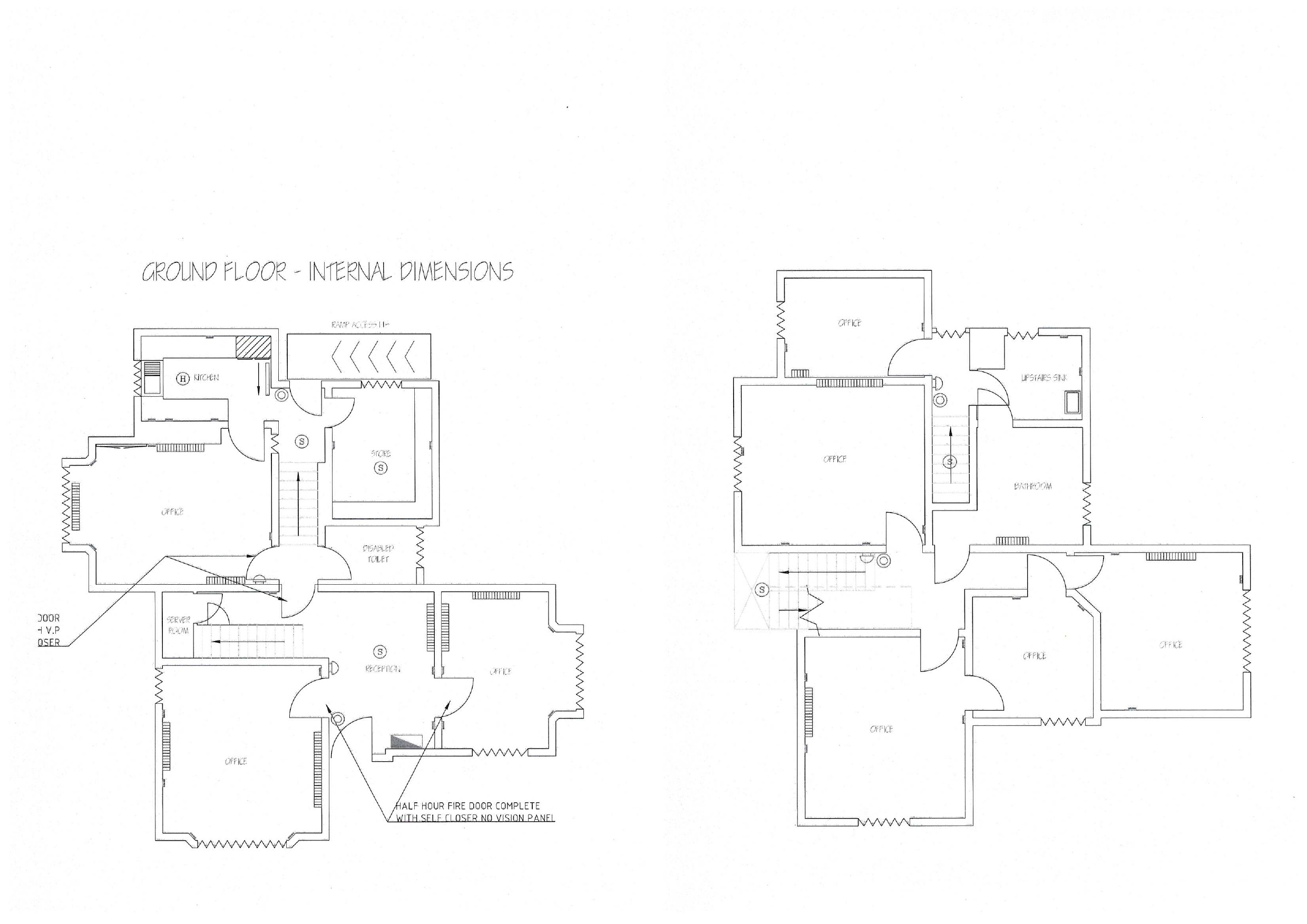
Property Floorplans

floor Plans Photo

EPC Graphs

floor Plans Photo

Property Location

Request Details Book Viewing View Brochure Make Offer
Share mail icon

Key Features


Property Details

Property Type: Office

Property Tenure: Available

Council Tax Band: None

Bedroom(s): 0

Bathroom(s): 0

Living Room(s): 0

Available From: April 5, 2026, midnight

Address: Crewe Green Road , Crewe, CW1 5NW

Features

Price & Bills

Deposit £2166.00

Rent PCM £2166.00

Bills Included

Tenant Preference

Parking

N/A

Outside Space

N/A

Heating

N/A


Cookies disclaimer

I agree Our site saves small pieces of text information (cookies) on your device in order to deliver better content and for statistical purposes. You can disable the usage of cookies by changing the settings of your browser. By browsing our website without changing the browser settings you grant us permission to store that information on your device.