Book viewings, submit offers and valuations online 24/7

  0203 5000 999         Login  / Register   

1 bed Apartment in Riverstone Heights 8 Reed Avenue, Tower Hamlets, E3 3ZB £92,500

Available

Description

Property Ref: 16621
For viewing arrangement, please use 99home online viewing system.

Located in the modern and well-connected development of Riverstone Heights, 8 Reed Avenue, E3, this attractive one-bedroom leasehold apartment offers an excellent opportunity for first-time buyers through a 25% shared ownership scheme.

Set within a vibrant East London location, the property combines affordability with contemporary living.

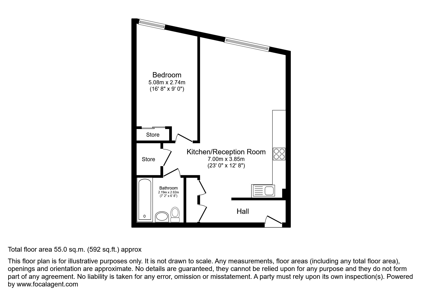
The apartment features 1 spacious bedroom, 1 well-appointed bathroom, and 1 bright living room, alongside a modern fitted kitchen designed for practical, everyday use. The layout is thoughtfully arranged to maximise space and natural light, creating a comfortable and low-maintenance home environment.

This leasehold property benefits from an exceptionally long lease of approximately 990 years, with no ground rent payable. The annual management charge is £2,320.44, ensuring the upkeep of communal areas and overall development standards. The property falls within Council Tax Band C.

Offered under a 25% shared ownership scheme, the property provides an affordable route onto the property ladder, with a monthly rent of £774.35 and a monthly service charge of £193.37.
Situated in a prime E3 location, the development offers excellent access to local amenities, transport links, and key destinations across London, making it ideal for professionals and commuters alike.

The property is available now, presenting a fantastic opportunity to secure a home in a sought-after and growing area.

**** For further information and to arrange a viewing, please contact our dedicated sales team today.****

Property Type: Apartment
Full selling price: £370000.00
Pricing Options: Shared ownership
Tenure: Leasehold
Percentage to be sold: 25%
Share price: £92500.00
Monthly rent based on 25% share: £635.95
Remaining lease (In Years): 990
Yearly Ground Rent Cost: £0.00
Yearly Management Cost: £2320.44
Council tax band: C
EPC rating: B
Measurement: Bedrooms, Bathrooms and Living room
Possession of the property: Occupied.


Property Ref: 16621

  • 1 Bedroom(s)
  • 1 Bathroom(s)
  • 1 Living Room(s)

Address: Riverstone Heights 8 Reed Avenue, Tower Hamlets, E3 3ZB.

Shared ownership: £92,500

For more details and to book an appointment,  Call our dedicated sales team now.

Disclaimer : 99home.co.uk is the seller's agent for this property. Your conveyancer is legally responsible for ensuring any purchase agreement fully protects your position. We make detailed enquiries of the seller to ensure the information provided is as accurate as possible. Please inform us if you become aware of any information being inaccurate

Fraud warning : We have had reports of fraudulent activities in our industry. DO NOT make any payment directly to the landlord or the seller. Be cautious of emails or messages asking you to transfer funds to any account, please contact us by telephone immediately to verify the authenticity of the communication and under NO circumstances action the request. If you paid any deposit or rent to 99home, we will release the fund to the landlord once you have moved in. Your safety is our top priority!

Property Floorplans

floor Plans Photo

EPC Graphs

floor Plans Photo

Property Location

Request Details Book Viewing View Brochure Make Offer Stamp Duty Calculator
Share mail icon

Key Features


Property Details

Property Type: Apartment

Property Tenure: Leasehold

Council Tax Band: C

Bedroom(s): 1

Bathroom(s): 1

Living Room(s): 1

Address: Riverstone Heights 8 Reed Avenue, Tower Hamlets, E3 3ZB

Lease Hold property options

Remaining Lease in years: 990

Yearly Ground rent cost: 0.00

Yearly management cost: 2320.44

Status Available

Features

Shared ownership - 25%

Monthly rent is £635.95

Monthly service charge is £ 193.37

Parking

N/A

Outside Space

Communal Garden

Heating

Underfloor Heating


Cookies disclaimer

I agree Our site saves small pieces of text information (cookies) on your device in order to deliver better content and for statistical purposes. You can disable the usage of cookies by changing the settings of your browser. By browsing our website without changing the browser settings you grant us permission to store that information on your device.