Book viewings, submit offers and valuations online 24/7

  0203 5000 999         Login  / Register   

2 bed Flat in 3 Pembury road , Westcliff, SS0 8DU £450,000

Available

Description

Property Ref: 16637
For viewing arrangement, please use 99home online viewing system.

Property Ref: 16637

Seaside spot! Guide Price £450,000 - £475,000
An exceptional two bedroom penthouse apartment, set within an elegant character building in the prestigious Leas conservation area. This property boasts breathtaking estuary views and a stunning private roof terrace, ideal for entertaining and outdoor dining.

Perfectly positioned on Pembury Road in Westcliff on Sea, the property is just moments from the beach and within easy reach of shops, cafés and restaurants. Excellent transport links are nearby, with direct rail services into London Fenchurch Street. The charming Old Leigh is also just a 30 minute coastal stroll away.

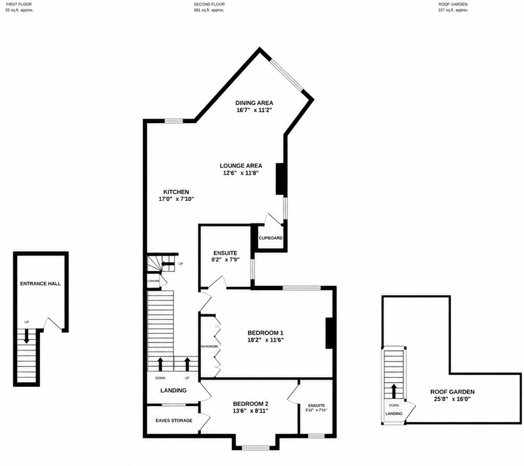
Accommodation Comprises

Well maintained communal entrance with secure entry phone system and stairs leading to private entrance.

Entrance Hall – 2.92m x 2.29m 9'7 x 7'6
Exposed varnished floorboards, radiator, stairs rising to:

Split Level Landing – 5.94m x 2.16m 19'6 x 7'1
Spacious and light landing with storage, feature flooring and access to the roof terrace.

Open Plan Lounge Kitchen Dining Area

Living Dining Area – 7.30m x 3.75m 23'9 x 12'3
Dual aspect windows with stunning estuary views, exposed floorboards, feature fireplace with log burner, radiators.

Kitchen Area – 5.18m x 2.39m 17'0 x 7'10
Modern fitted kitchen with integrated appliances including double oven, five ring gas hob, dishwasher, and space for American style fridge freezer.

Bedroom One – 5.54m x 3.51m 18'2 x 11'6
Double glazed window with estuary views, fitted wardrobes, feature fireplace, radiator.

En Suite Bathroom – 2.49m x 2.13m 8'2 x 7'0
Stylish suite with claw foot bath, rainfall shower, WC, wash basin and heated towel rail.

Bedroom Two – 4.11m x 2.72m 13'6 x 8'11
Double glazed window to rear, built in storage, radiator.

En Suite Shower Room – 2.24m x 2.03m 7'4 x 6'8
Modern suite with shower cubicle, WC, wash basin and heated towel rail.

Externally

Roof Terrace – 7.82m x 4.88m 25'8 x 16'0
An impressive private south facing terrace with panoramic estuary views towards Southend Pier, Leigh on Sea and the Kent coastline.

Basement Storage – 12.90m x 1.83m 42'4 x 6'0
Shared access to useful storage space...

Property Type: Flat
Full selling price: £450,000
Pricing Options: Guide Price
Tenure: Share of Freehold
Council tax band: A
EPC rating: C
Measurement: 1001.04 sq.ft.
Outside Space: Roof Garden
Parking: On street
Heating Type: Double Glazing, Gas Central Heating
Chain Sale or Chain Free: Chain free
Possession of the property: Self-occupied

-----------------------------------------------------------------------------------------------------

  • 2 Bedroom(s)
  • 2 Bathroom(s)
  • 1 Living Room(s)

Address: 3 Pembury road , Westcliff, SS0 8DU.

Guide Price: £450,000

Property Video: https://youtube.com/shorts/7CKdklhAUuk

For more details and to book an appointment,  Call our dedicated sales team now.

Disclaimer : 99home.co.uk is the seller's agent for this property. Your conveyancer is legally responsible for ensuring any purchase agreement fully protects your position. We make detailed enquiries of the seller to ensure the information provided is as accurate as possible. Please inform us if you become aware of any information being inaccurate

Fraud warning : We have had reports of fraudulent activities in our industry. DO NOT make any payment directly to the landlord or the seller. Be cautious of emails or messages asking you to transfer funds to any account, please contact us by telephone immediately to verify the authenticity of the communication and under NO circumstances action the request. If you paid any deposit or rent to 99home, we will release the fund to the landlord once you have moved in. Your safety is our top priority!

Property Floorplans

floor Plans Photo

EPC Graphs

floor Plans Photo

Property Location

Request Details Book Viewing View Brochure Make Offer Stamp Duty Calculator
Share mail icon

Key Features


Property Details

Property Type: Flat

Property Tenure: Share of Freehold

Council Tax Band: A

Bedroom(s): 2

Bathroom(s): 2

Living Room(s): 1

Address: 3 Pembury road , Westcliff, SS0 8DU

Features

Chain Free

Stunning Estuary Views

Exceptional Character Penthouse Apartment

Impressive Private Roof Terrace

Beautiful Open Plan Lounge, Kitchen & Dining Area

Two Bedrooms Both With En-Suites

Share Of Freehold

7 Minute Walk To Train Station

Large Basement For Storage

Parking

On street

Outside Space

Roof Garden

Heating

Double Glazing

Gas Central Heating


Cookies disclaimer

I agree Our site saves small pieces of text information (cookies) on your device in order to deliver better content and for statistical purposes. You can disable the usage of cookies by changing the settings of your browser. By browsing our website without changing the browser settings you grant us permission to store that information on your device.