Book viewings, submit offers and valuations online 24/7

  0203 5000 999         Login  / Register   

0 bed Land in Land North East , Newquay, TR7 3DY £75,000

Available

Description

Property Ref: 15637
For viewing arrangement, please use 99home online viewing system.

Property Ref: 15637

Rare Consent-Backed Residential Plot Moments from Newquay’s Coastline

An outstanding opportunity to acquire a freehold residential building plot with planning permission and a Certificate of Lawfulness confirming lawful commencement, ensuring the consent is extant and not subject to expiry.

The plot is located within a highly desirable residential area of Newquay, just minutes from the town centre and some of Cornwall’s most popular beaches, including Tolcarne Beach, making it an increasingly rare find in this coastal location.

The site has already been excavated and levelled, with key enabling works completed, allowing a purchaser to progress straight to construction with reduced upfront risk and cost.

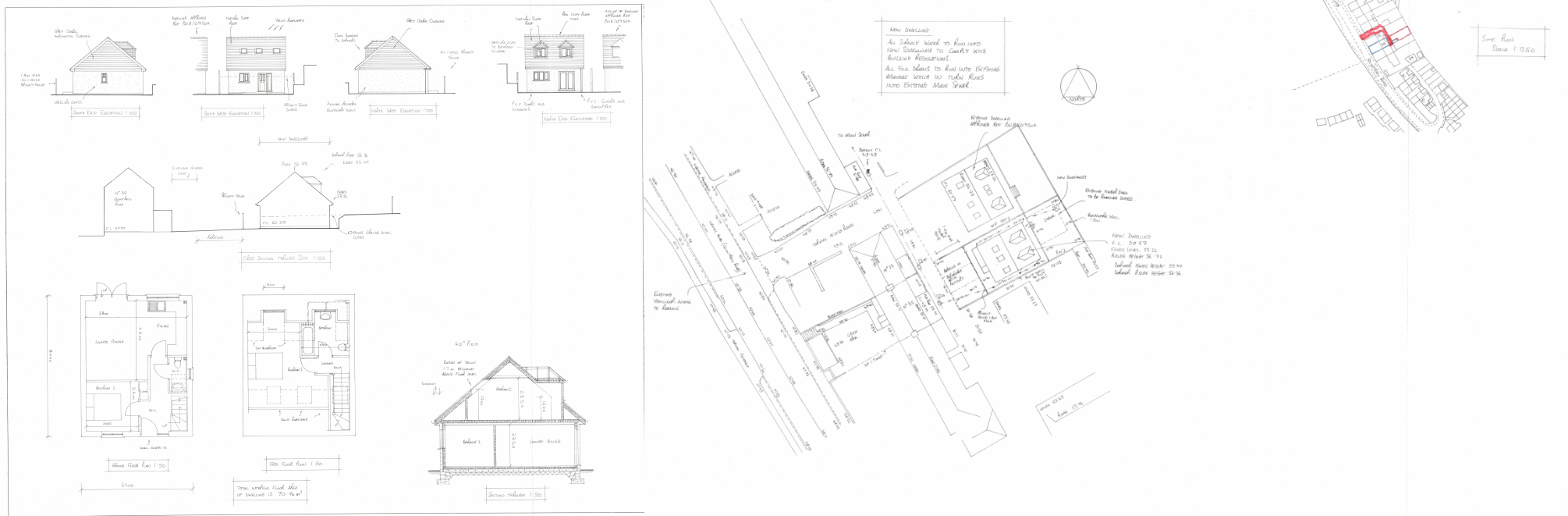
The approved plans provide for a charming two-bedroom detached dwelling, designed for modern living, and incorporating off-road parking for two vehicles — a significant advantage so close to the coastline and town amenities.

The project was originally intended to be developed as a private family home by the current owner. A change in work commitments now presents an excellent opportunity for a purchaser to take on a manageable and well-defined self-build, or a small residential development, in one of Cornwall’s most sought-after locations.

Plots of this nature are increasingly scarce. Many comparable opportunities are located further inland or in rural settings with limited access to everyday amenities. This plot offers a rare balance of coastal lifestyle and convenience, being within easy reach of shops, schools, transport links, and medical facilities, while still enjoying close proximity to the beach.

Planning & Legal Status

The development benefits from planning permission that has been lawfully commenced and formally confirmed by a Certificate of Lawfulness. As a result, the consent is permanently secured and not subject to expiry, providing a high degree of legal certainty for purchasers.

Approved plans, site layout drawings, and supporting documentation are available upon request.

Services

Mains foul drainage located in the access road immediately outside the plot

Mains water connection available (new connection required)

Electricity connection available

No pumping stations or private drainage systems required

The approved scheme is designed for a modern electric-only energy strategy

Initial enquiries regarding service connections have already been made, and connections are considered straightforward.

Community Infrastructure Levy (CIL)

The purchaser will be responsible for a CIL payment of £7,500, payable to the Local Authority, in addition to the purchase price.

Summary

This is a rare and compelling opportunity to secure a consented, build-ready plot in a prime Newquay location — ideal for those wishing to create a coastal home, or for a buyer seeking a scarce residential plot with strong long-term appeal.

Details

Property Type: Land
Tenure: Freehold
Outside Space: Private rear garden
Parking: Off-road parking for two vehicles
Guide Price: £75,000 – £85,000 (Offers considered)
Energy Strategy: Electric-only (no gas required) -----------------------------------------------------------------------------------------------------

  • 0 Bedroom(s)
  • 0 Bathroom(s)
  • 0 Living Room(s)

Address: Land North East , Newquay, TR7 3DY.

Offers in the region of: £75,000

For more details and to book an appointment,  Call our dedicated sales team now.

Disclaimer : 99home.co.uk is the seller's agent for this property. Your conveyancer is legally responsible for ensuring any purchase agreement fully protects your position. We make detailed enquiries of the seller to ensure the information provided is as accurate as possible. Please inform us if you become aware of any information being inaccurate

Fraud warning : We have had reports of fraudulent activities in our industry. DO NOT make any payment directly to the landlord or the seller. Be cautious of emails or messages asking you to transfer funds to any account, please contact us by telephone immediately to verify the authenticity of the communication and under NO circumstances action the request. If you paid any deposit or rent to 99home, we will release the fund to the landlord once you have moved in. Your safety is our top priority!

Property Floorplans

floor Plans Photo

Property Location

Request Details Book Viewing View Brochure Make Offer Stamp Duty Calculator
Share mail icon

Key Features


Property Details

Property Type: Land

Property Tenure: Freehold

Council Tax Band:

Bedroom(s): 0

Bathroom(s): 0

Living Room(s): 0

Address: Land North East , Newquay, TR7 3DY

Features

Parking

Allocated

Outside Space

Rear Garden

Enclosed Garden

Heating

N/A


Cookies disclaimer

I agree Our site saves small pieces of text information (cookies) on your device in order to deliver better content and for statistical purposes. You can disable the usage of cookies by changing the settings of your browser. By browsing our website without changing the browser settings you grant us permission to store that information on your device.